Выберите валюту для сайта:
BYN
Подать БЕСПЛАТНО

Купить 2-этажную дачу в Бодрость-84 Минская область, 45000USD, код 184881

66.6 м2
Дача
Адрес д. 60
Направление Молодечненское
Удаленность от МКАД 11 км
Год постройки 2009
  
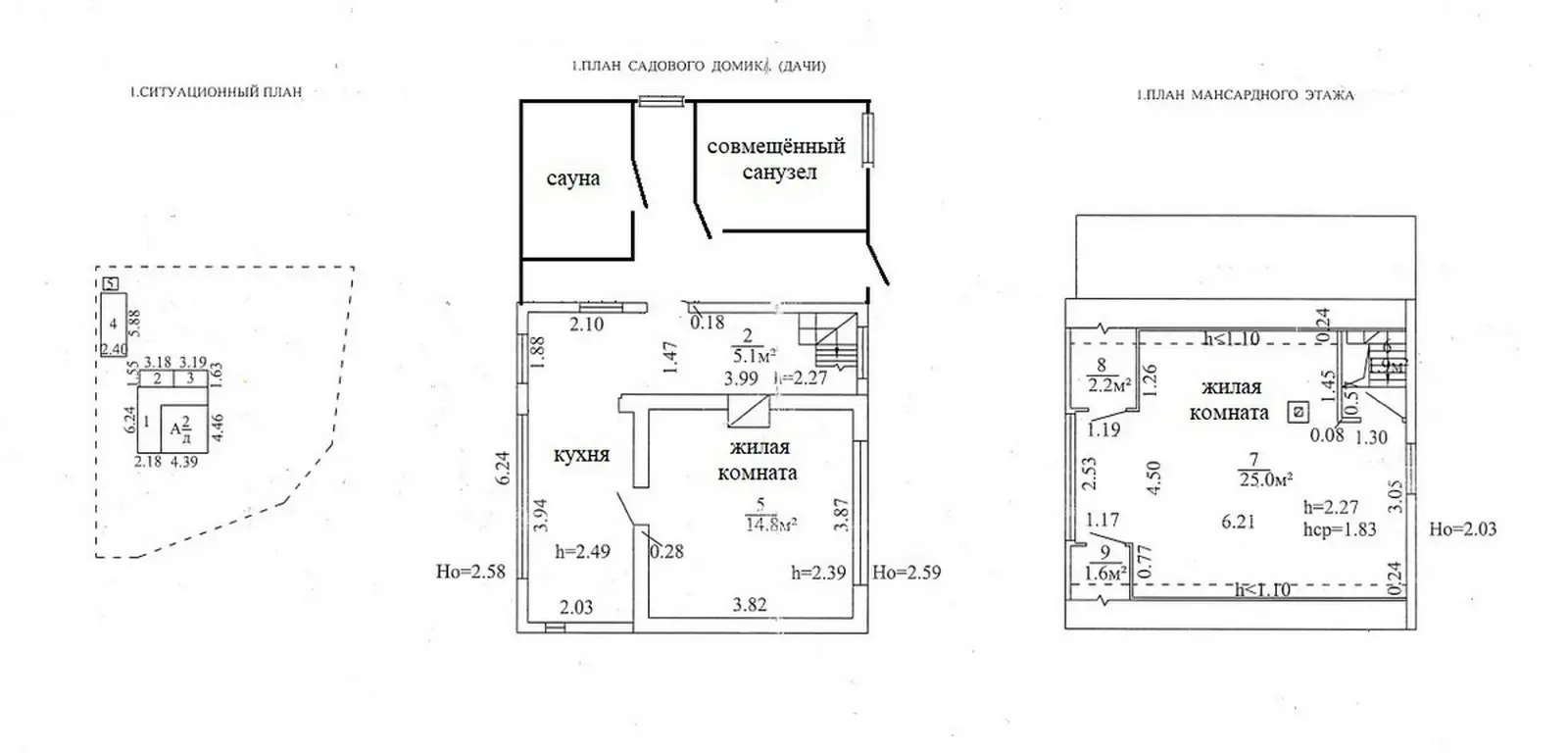
Общая площадь 66.6 м2
Участок 6.00 соток
Площадь дома 66.6 м2
Комнат 2
Этажей 2
Материал стен Блоки
Отделка С отделкой
Тип отопления Печное
Водоснабжение Скважина
Канализация 1

Описание

Дом 2-х этажный, деревянный с новой пристройкой из блоков на высоком фундаменте и крышей из металлочерепицы (серый графит) 2025 г. Расположен на участке 6 соток в 3 км. от Минского моря в окружении лесов. Полностью готов к проживанию. Общая площадь 90 кв.м. Все окна в доме пластиковые. Электропроводка новая. Вода из скважины 45 метров, пробурена в прошлом году, на гарантии. Канализация местная на 5 больших колец. В товариществе ведут ГАЗ, уже возле соседнего дома!!! В блочной пристройке сауна и санузел с душевой кабиной, унитазом, умывальником, бойлером на 100 литров, с фильтром для воды, выводами для стиральной машины. На первом этаже в прихожей и санузле на полу плитка, на кухне ламинат. Отделка стен произведена имитацией бруса и пропитана защитно-декоративным средством. Потолки натяжные. Также есть помещение под котельную. В сауне установлена новая финская печь Harvia, ещё на гарантии, стены обшиты вагонкой из ольхи. Печь из кирпича, проходит через мансардный этаж. В кухне на полу есть люк в погреб, абсолютно сухой! На втором этаже на полу доска, стены и потолок обшиты ДСП. На участке есть большая беседка из сруба со светом и розетками, сарай, фундамент под надувной бассейн. Есть продуктовый магазин, прямо при въезде в товарищество. Асфальтированная широкая дорого до участка. Много соседей живут круглогодично, дороги освещены и чистятся зимой. Часто ходят маршрутки и автобус. Товарищество создавалось для медработников.
Код объекта: 184881 Договор с собственником: #11/2 от 03.02.2026 Опубликовано: 06.02.2026 Обновлено: 24.03.2026
17 / 18 / 396
Дача, 66.6 м2
Бодрость-84, д. 60
133 943 р.
Вариант
Пожалуйста, скажите, что нашли этот объект на Domovita.by
+
Фильтр сохранен