Выберите валюту для сайта:
BYN
Подать БЕСПЛАТНО

Купить торговое помещение в Больших Пурневичах, 420000USD, код 996087

397 м2 1 этаж из 2
1 221 654 р.
Торговый объект
Адрес Большие Пурневичи
Год постройки 2022 г.
Площадь 397 м2
Этаж 1

Описание

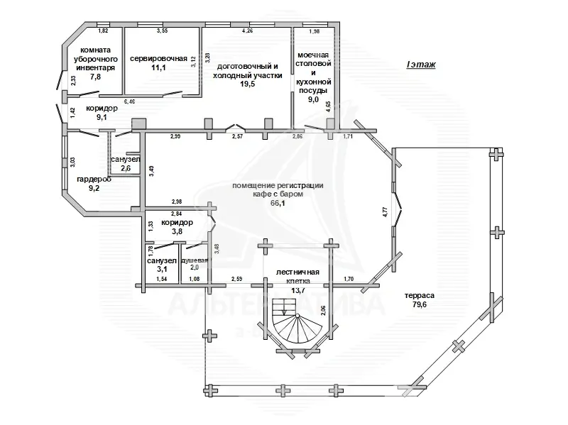
Здание придорожного сервиса в собственность в районе д. Большие Косичи Брестского района общей площадью 397 кв.м, расположенное на земельном участке площадью 0,50 га. Отдельно стоящее с мансардой капитальное строение 2022 года постройки. Технические характеристики здания: фундамент бетонный, полы - плитка, стены - бревно, блочные, окна, двери - ПВХ, перекрытия деревянные, крыша - металлопрофиль. На 1 (первом) этаже расположено кафе с баром и летней террасой, оборудована кухонная зона. На мансарде расположены 3 (три) гостиничных номера с террасой. Коммуникации: электричество - 220, 380 Вт (входная мощность до 100 кВт), отопление электрическое, водоснабжение центральное, канализация местная. Асфальтные подъездные пути. Цена указана с НДС. Варианты аренды НЕ рассматриваются. Лот - 240620. Смотреть подробнее.

Здесь можно подписаться на рассылку новых предложений и снижения цен по КОММЕРЧЕСКОЙ НЕДВИЖИМОСТИ в Брестском регионе прямо Вам в Viber или Telegram ЗАО «АЛЬТЕРНАТИВА Брест». УНП 291427570 Лицензия № 02240/303 от 02.02.2016г. Договор номер 620/1 от 25.03.2024
Код объекта: 996087 Договор с собственником: 25.03.2024 №620/1 Опубликовано: 28.03.2024 Обновлено: 27.11.2025
0 / 0 / 3
Динамика цен за кв. метрДинамика цен

Вы просматривали

Торговый объект, 397 м2
Большие Пурневичи
1 221 654 р.
3 077 р. за м2
Ярмоцик Андрей Петрович
Пожалуйста, скажите, что нашли этот объект на Domovita.by
+
Фильтр сохранен