О квартире
Площадь
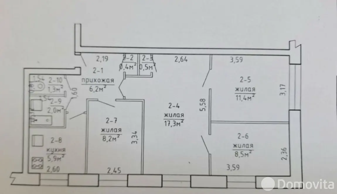
62 м2
общая
46 м2
жилая
6 м2
кухня
Санузел
Раздельный
Балкон
Нет
Тип ремонта
Хороший
О доме
Этаж
1 из 5
Материал стен
Кирпичный
Год постройки
1967
Описание
Полина — Собственник
2 года на сайте
Условия сделки:Любые
Пожаловаться на объявление






