О доме
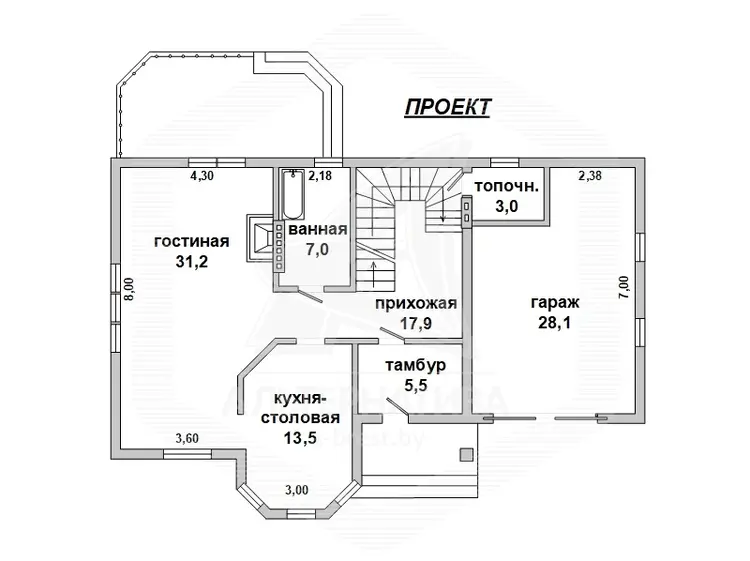
Площадь общая
78.1 м2
Площадь дома
78.1 м2
Участок
14.76 соток
В продаже
Целый дом
Год постройки
2020
Материал стен
Блоки
Материал крыши
-
Коммуникации
Водоснабжение: Скважина
Газ: -
Электричество: Есть
Описание
Толкачев Дмитрий Олегович — Агент
9 лет на сайте
Показать почту
Пожаловаться на объявление
Агентство недвижимости
АЛЬТЕРНАТИВА Брест
УНП: 291427570 Лицензия: от 02.02.2016 № 21
Договор №: 08.10.2020 №3238/1








