Выберите валюту для сайта:
BYN
Подать БЕСПЛАТНО

Продажа 1-этажной дачи в Черница Минская область, 10000USD, код 185187

46 м2
Дача
Город Черница
Адрес Черница
Направление Мядельское
Удаленность от МКАД 17 км
Год постройки 1994
  
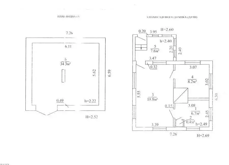
Общая площадь 46 м2
Участок 6.00 соток
Площадь дома 46 м2
Этажей 1
Тип отопления Печное

Описание

  Участок: 6,11 соток.

       Дом: 1994 ода постройки, панельный, площадь 46 кв.м. Требует ремонта. В доме три комнаты: гостиная -  18,8 кв.м, комнаты: 8,2 кв.м. и  6,7 кв.м. Отопление печное. Два года назад произведен капитальный ремонт крыши, всё герметично. В этом году должны подключить интерент.

  Коммуникации: Свет в доме (переделывали, счетчик выведен на улицу), вода сезонная введена в дом. Туалет на улице.

  Дополнительно: Есть гараж.

  Инфраструктура: В товариществе есть магазин, автобусы из Минска ходят ежедневно (с автостанции Карбышева). Многие соседи проживают круглогодично.

      Чистая продажа.  

      За дополнительной информацией обращайтесь по телефону.

      Приезжайте на просмотр!

Код объекта: 185187 Договор с собственником: 37/2 от 2026-03-18 Опубликовано: 20.03.2026 Обновлено: 20.03.2026
26 / 31 / 31
Дача, 46 м2
Черница
30 088 р.
Татьяна Юлия
Пожалуйста, скажите, что нашли этот объект на Domovita.by
+
Фильтр сохранен