Купить 2-этажную дачу в Черница Минская область, 72000USD, код 185308

136.9 м2
Дача
Город Черница
Адрес д. 76
Направление Мядельское
Удаленность от МКАД 17 км
Год постройки 1989
  
Общая площадь 136.9 м2
Участок 8.36 соток
Площадь дома 136.9 м2
Этажей 2
Материал стен Кирпич
Тип отопления Печное
Канализация Есть

Описание

Продается чудесная дача с земельным участком в СТ "Черница" Минской области Минского района в непосредственной близости от г.Минска - 17 км в Мядельском направлении. Дом построен с соблюдением всех строительных норм. В 2011 году был выполнен полностью ремонт с использованием дизайнерской отделки, установки новой мебели и техники.

Дом построен с теплотой и любовью, где есть все необходимое для комфортного время провождения!

Участок: разбит на два - 0.0443 га (основной) и 0.0393 га (под огород), оба в частной собственности, облагорожены, почва - плодородная. Посажено много хвойных, плодово-ягодных деревьев и кустарников. Есть цветущие декоративные растения в частности розы, пионы, гортензия.

На участкевода - сезонная (заведена в дом, закрытую террасу, санузел и баню, есть бойлер), электричество - 220/380 Вольт, канализация - местная, отопление - печное/конвекторы/электрическое, газ - баллон.

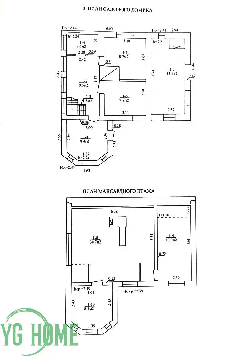
Садовый домик 100% готовности и состоит из первого и мансардного этажей, цокольного этажа, гаража, с баней, закрытой террасой. Материал стен - кирпич, утепление на металлокаркасе утеплителем высокой плотности, гидроизоляционная, пароизоляционная плёнки, и облицованы сайдингом. Крыша - металлочерепица с утеплением 25 см. Материал отделки внутренних стен - качественные виниловые обои/декоративная штукатурка/вагонка/плитка. Пол - плитка/доска. Межкомнатные двери - массив. Окна - ПВХ.

Первый этаж - просторная прихожая, 2 комнаты, кухня-столовая с отлично продуманной встроенной кухней, оборудованной газовой панелью, холодильником, микроволновой печью, столовой группой. Первый этаж обогревается печью/теплыми электрическими полами. Второй этаж - 2 комнаты, просторная гостиная с камином. В цокольном этаже расположен гараж и два подсобных помещения для хранения; цоколь утеплен, оштукатурен, окрашен.

Закрытая терраса - оборудована мини-кухней, печью-камином, посудомоечной машиной; место, где будет приятно проводить время летними теплыми вечерами за душевными разговорами в кругу семьи.

На территории участка есть баня и санузел. Материал стен бани/санузла - кирпич, облицованы сайдингом, крыша - ондулин. Помещение оборудовано всем необходимым - комнатой отдыха, душевой, сауной; установлена стиральная машина, умывальник и биде.

Участок огорожен забором, соседи с двух сторон.

До СТ асфальтируемая дорога. Хорошее транспортное сообщение - ходят автобусы, маршрутки, остановка в 5 минутах ходьбы.

Рядом с СТ -  лес, магазин «СеверМаркет», работающий ежедневно с 9 до 21 круглый год с ассортиментом не хуже минского магазина, водохранилище Вяча, дачный пруд, зарыблен. 

Наш дача - заезжай и живи! Крепкий и теплый! Вся мебель/техника практически полностью перейдет новому хозяину!

Звоните и давайте смотреть наш дом, который строили с огромной любовью к каждой детали и для себя! Вы обязательно почувствуете это!

Организуем показ в удобное время!

Мы гарантируем быструю и комфортную сделку.

Поможем продать вашу недвижимость для покупки нашей!

Общество с ограниченной ответственностью «ЮГ Хоум»

УНП: 193511758

Лицензия: 02240/412 от 19.03.2021, Министерство юстиции РБ.

Код объекта: 185308 Договор с собственником: 103/1 от 2026-03-24 Опубликовано: 29.03.2026 Обновлено: 29.04.2026
0 / 2 / 85
Дача, 136.9 м2
Черница, д. 76
199 418 р.
Наталья
Пожалуйста, скажите, что нашли этот объект на Domovita.by
+
Фильтр сохранен