Подать БЕСПЛАТНО

Продать 1-этажный дом в Адамовичах, Минская область ул. Совхозная, 40000USD, код 657230

Минская область, д. Адамовичи, ул. Совхозная
Показать на карте
Молодечненское направление
52 км от МКАД
117 036 р.
Код объекта: 657230
107.2 м2
31.85 сотка
Обновлено: 06.03.2026
117 036 р.
Предложить свою цену

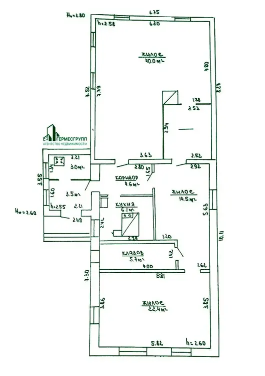
О доме

Площадь общая
107.2 м2
Площадь дома
107.2 м2
Участок
31.85 сотка
В продаже
Целый дом
Готовность дома, %
100
Год постройки
1958
Материал стен
Дерево
Материал крыши
Шифер

Коммуникации

Водоснабжение: Центральное
Газ: В доме
Электричество: Есть
Канализация: Есть

Описание

Продаётся добротный, крепкий дом, в д. Адамовичи. В 2-х км от г. Молодечно

Дом большой 100,7 м2, деревянный с кирпичной пристройкой, жилой. 

В доме 6 жилых комнат, светлых и уютных, кухня, холодная кирпичная пристройка. В доме сделан аккуратный ремонт, окна ПВХ, входная металлическая дверь. При необходимости можно сделать реконструкцию и перепланировку и устроить санузел. В дом проведены холодная вода (центральный водопровод), природный газ, свет. Канализация местная. Отопление – газовый котёл. Для комфортного проживания есть печка, можно устроить камин. 

На участке 13.35 соток расположены бетонный погреб, кирпичный гараж, 4 сарая. 

Есть участок 18,5 соток для ведения личного подсобного хозяйства. Участки огорожены.

Деревня жилая, совсем рядом с городом, в 2-х километрах от Молодечно, с хорошим подъездом.

Торг. Честная цена, без скрытых платежей.

Рассмотрим все предложения по цене и все предложенные Вами варианты расчётов.

Ответим на все Ваши вопросы. Покажем в удобное для Вас время. 

Покупатель, выбрав этот дом для покупки, в соответствии с законодательством не оплачивает услуги агентства, но получает полное сопровождение сделки с гарантированным результатом, страховку. Работаем со всеми видами кредитов, материнским капиталом, субсидиями.

Вас бесплатно проконсультируем по вопросам  покупки и продажи, в том числе вашей недвижимости. обращайтесь по адресу: г. Молодечно, ул. Громадовская, 1-2.

ООО "Агентство недвижимости ГермесГрупп». УНП 193776843. Лицензия Министерства Юстиции Республики Беларусь  N 02240/487 от 07.08.2024 г.

ГалинаАгент
год на сайте
Показать почту
Пожаловаться на объявление
Агентство недвижимости
"Агентство недвижимости Гермес Групп"

Местоположение

Минская область, д. Адамовичи, ул. Совхозная
Опубликовано: 06.03.2026

Похожие объекты

На этой улице
58 518 р.
д. Адамовичи, ул. Совхозная
75
38.2
7.5 м2
25 соток