О доме
Описание
Видеообзор по запросу.
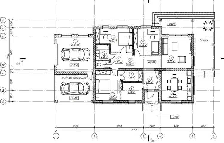
Дом в д. Антосино, Фанипольский с/с, Дзержинский р-н, Минская обл, Брестское направление, 21 км от МКАД. Площадь общая дома 147,44 м.кв., жилая 87,11 м.кв, (3 спальни, одна из которых мастер-спальня), кухня-гостиная 36,8 м.кв. Ванная 4,40 м.кв., С/У 2,20 м.кв. Гараж: 26 м.кв. Угловая Терраса (выход из кухни-гостиной).
Фундамент:
Свайно-ростверковый, сваи 2,5м.
Черновая плита с сеткой 100/100/4мм
Стены:
Газосиликатный блок 300 мм. Утепление 200 мм потолок.
Межкомнатные перегородки 100мм.
Крыша:
Металлочерепица матовая (Ral 9005), установлены снегозадержатели.
Водоснабжение:
Собственная скважина 40 метров!
Кабель вводной в доме, вода в дом заведена.
Канализация:
местная,2 переливных колодца, по 2 кольца, 1,5 метра в диаметре, песчаный грунт.
Участок 11,3 сотки, в частной собственности.
На участке расположена бытовка (морской контейнер) 6 м.
Гараж и парковочное место для автомобиля под навесом.
Со сроками и условиями проведения торгов (конкурсов), указанными в извещении о проведении торгов (конкурса), можно ознакомиться, в газете «ЗВЯЗДА» No 54 (30693) от «20» марта 2026 г.
Напишите нам в удобный для Вас мессенджер:
Viber | Telegram | WhatsApp
Ответим на Ваши вопросы, предоставим всю необходимую информацию.
УНП 193734126 220034, г. Минск, ул. Платонова, дом 1Б, кабинет 7, 7 этаж.
ООО «СидНеА» организация и проведение торгов, конкурсов.
Договор № 174/1 от 16.03.2026 г.












