О доме
Площадь общая
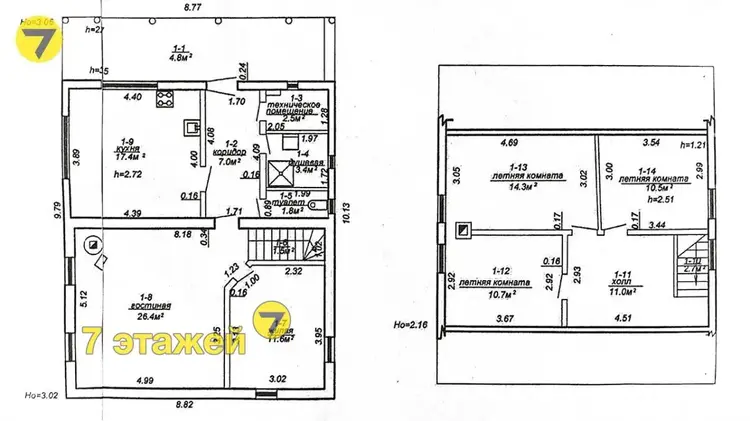
125.6 м2
Площадь дома
125.6 м2
Участок
14.95 соток
В продаже
Целый дом
Готовность дома, %
100
Год постройки
2014
Материал стен
Сруб
Материал крыши
Металлочерепица
Удобства
Камин
Коммуникации
Отопление: электрическое
Водоснабжение: Скважина
Газ: Нет
Электричество: Есть
Телефон: Да
Канализация: 1
Описание
Агент — агент
9 лет на сайте
Показать почту
Пожаловаться на объявление
Агентство недвижимости
7 этажей
УНП: 192361483 Лицензия: от 14.11.2014 № 225
Договор №: 213/2 от 27.02.2020












