Подать БЕСПЛАТНО

Продажа 2-этажного дома в Боровиках, Минская область ул. Минская, 160000USD, код 658469

Минская область, д. Боровики, ул. Минская
Показать на карте
Слуцкое направление
18 км от МКАД
453 248 р.
Код объекта: 658469
202.9 м2
15 соток
Обновлено: 16.04.2026
453 248 р.
Предложить свою цену

О доме

Площадь общая
202.9 м2
Площадь дома
202.9 м2
Участок
15 соток
В продаже
Целый дом
Готовность дома, %
100
Год постройки
2014
Материал стен
Блоки

Коммуникации

Газ: В доме
Электричество: Есть
Канализация: Есть

Описание

Предлагаем вашему вниманию великолепный двухуровневый дом в д. Боровики, Дзержинского района.

 

1. Месторасположение: Дом расположен в д. Боровики (22 км. от МКАД в Слуцком направлении). Экологически чистое, тихое место. До Минска 3 раза в день ходит маршрутное такси, в поселке функционирует продовольственный магазин, школа, амбулатория.

 

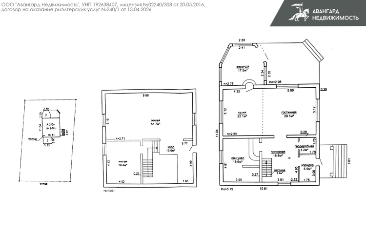
2. Строение: Дом 2014 года постройки. Два жилых этажа. Общая площадь 202,9/100,2/22,1. Полы ламинированные. При продаже остается вся мебель и техника, материал стен – блочный, обшит сайдингом, перекрытия – деревянные, крыша – металлочерепица. Теплые полы разведены по дому (водяные). Есть телефон и интернет.

 

3. На участке расположен гараж, беседка, 2 пруда.

 

4. Коммуникации: Водоснабжение – центральное, отопление – газовое, канализация – местная. Дом полностью подходит для круглогодичного проживания.

 

5. Участок: Земельный участок 15 соток в пожизненном наследуемом владении, ровный с элементами ландшафтного дизайна, огорожен.

 

Дом свободен, никто не живет, ключи в день сделки.

 

Поможем продать Вашу недвижимость для покупки этой.

 

Приходите на просмотр – Вам понравится.

Этот объект можно купить в кредит, подробности уточняйте у специалиста по недвижимости.

 

Поможем продать ваш объект для покупки этого

Новые объекты в продаже каждый день

Бесплатный выезд риэлтора для оценки объекта

Поможем проверить самостоятельно найденный объект - услуга Свой Вариант

ВиталийАгент
9 лет на сайте
Показать почту
Пожаловаться на объявление
Агентство недвижимости
Авангард Недвижимость

Местоположение

Минская область, д. Боровики, ул. Минская
Опубликовано: 16.04.2026