Подать БЕСПЛАТНО

Продажа 1-комнатной квартиры в Копище, ул. Подгорная, д. 23/Г

Минская область, д. Копище, ул. Подгорная, 23/Г
Показать на карте
247 664 р.
Цена за м2: 5 733 р.
Код объекта: 1233543
1 комната
43.2 м2
9 этаж из 9
Обновлено: 13.03.2026
247 664 р.
Цена за м2: 5 733 р.
Предложить свою цену

О квартире

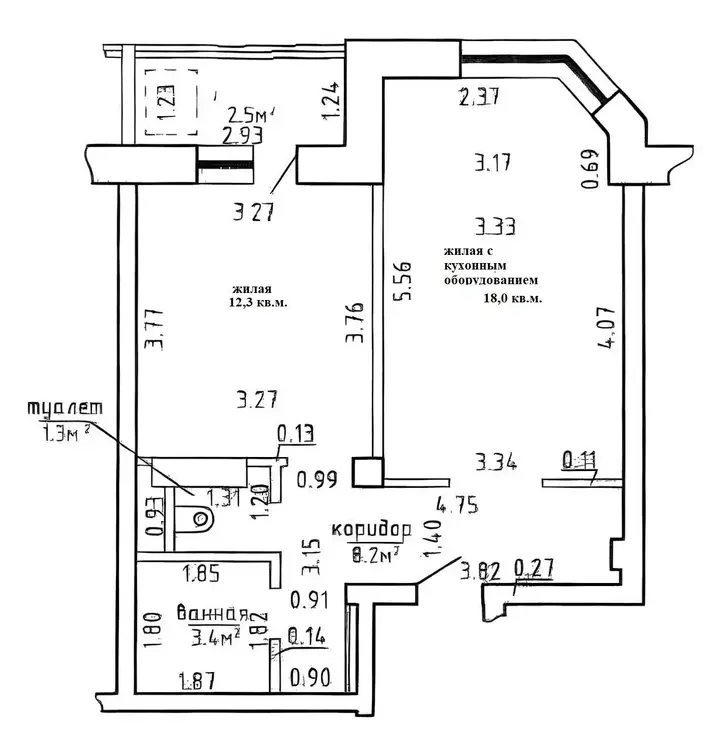
Площадь
43.2 м2
общая
18 м2
жилая
12.3 м2
кухня
Отдельных комнат
1 комната
Санузел
раздельный
Балкон
Лоджия
Тип ремонта
Без отделки

О доме

Этаж
9 из 9
Год постройки
2014

Описание

Уютная однокомнатная квартира, дом 2014 года постройки. 

Состояние квартиры: без отделки.

Площадь квартиры 45,7 м2 по СНБ

Рациональная планировка: большая жилая комната, раздельный санузел, просторная лоджия и кухня. Застекленная лоджия. Это визуально делает объект ещё более светлым.

Просторный тамбур, в котором только две квартиры и оборудованное помещение для хранения велосипедов/колясок. Ухоженный подъезд. Живописные виды из окон.             

Вместительная гостевая парковка.   

Квартира находится в новом микрорайоне. Развитая инфраструктура: в шаговой доступности остановки общественного транспорта, торговые и бизнес-центры, объекты бытового обслуживания и сервиса, магазины, учреждения здравоохранения и образования. Удобное транспортное сообщение и выезд на МКАД. Широкая транспортная сеть: многочисленные автобусы, маршрутные такси.

Дом расположен рядом с сосновым лесом

Прямая продажа.

Квартиру можно купить в кредит, оформить заявку на кредитование можно у нас в офисе.

АлександрАгент
8 лет на сайте
Условия сделки:продажа
Показать почту
Пожаловаться на объявление
Агентство недвижимости
Мариэлт

Местоположение

Минская область, д. Копище, ул. Подгорная, 23/Г
Опубликовано: 13.03.2026

Возможно, вам будет интересно

Похожие объекты

На этой улицеВ этом доме
253 863 р.
Цена за м2: 6 804 р.
д. Копище, ул. Подгорная
1-комн. кв
39
16
11 м2
1 этаж из 11
649 418 р.
Цена за м2: 7 622 р.
д. Копище, ул. Подгорная
3-комн. кв
85.2
47.4
12.4 м2
3 этаж из 9
457 545 р.
Цена за м2: 6 346 р.
д. Копище, ул. Подгорная
3-комн. кв
72.1
44.7
11.3 м2
10 этаж из 10
649 418 р.
Цена за м2: 7 622 р.
д. Копище, ул. Подгорная
3-комн. кв
85.2
47.4
12.4 м2
3 этаж из 9