Подать БЕСПЛАТНО

Продажа 2-комнатной квартиры в Копище, ул. Авиационная, д. 15

Минская область, д. Копище, ул. Авиационная, 15
Показать на карте
399 971 р.
Цена за м2: 5 988 р.
Код объекта: 1228667
2 комнаты
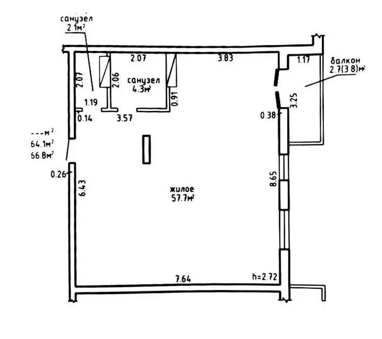
66.8 м2
13 этаж из 17
Обновлено: 10.02.2026
399 971 р.
Цена за м2: 5 988 р.
Предложить свою цену

О квартире

Площадь
66.8 м2
общая
57 м2
жилая
Санузел
раздельный
Балкон
Лоджия
Тип ремонта
Без отделки

О доме

Этаж
13 из 17
Материал стен
Панельный
Год постройки
2022

Описание

В продаже прекрасная двухкомнатная квартира в Новой Боровой, д. Копище, ул. Авиационная, 15. 

Дом расположен в квартале Центральный Парк. В квартире возведены стены как на фото №8, проведена сантехника, установлена инсталляция, фильтры, нагреватель.

Характеристики квартиры:

Дом 2022 года.

Квартира расположена на 13 этаже 17 этажного дома.

Площадь по СНБ 66,8 м2. Жилая площадь 57,7 м2.

Высота потолка: 2,72 м

Двор по периметру квартала огорожен еврозабором высотой 1,6 м, предусмотрено устройство системы контроля доступа с помощью чип-ключа.

Закрытый двор без автомобилей .

Прямо у вас во дворе:

- Детские площадки, зона барбекю, спортивная зона

- Беседка для отдыха и беседка-уличный офис

– Велобоксы

- Мини-огородик

По периметру дома и квартала устанавливаются видеокамеры в соответствии с концепцией безопасности района, а также предусматриваются видеокамеры на 1 этаже в подъезде и в кабинах лифтов.

Всё необходимое для комфортной жизни в шаговой доступности от дома: уютные кафе и пекарни, салоны красоты, различные магазины, аптеки, детские сады, школа, центр развития для детей, спорткомплекс с бассейном и сауной и многое другое.

До станций метро «Уручье» и «Восток» можно добраться на автобусе или маршрутке!

Удобный выезд на МКАД.

Поддерживаем вас на каждом этапе сделки: консультация, оформление кредита, содействие в реализации вашей недвижимости для приобретения этой квартиры.

Позвоните нам, узнайте подробности и приходите на просмотр своей будущей любимой квартиры!

Ваш комфорт начинается именно здесь.

Лицензия: 02240/446 от 11.07.2022, Министерство юстиции РБ

ГалинаАгент
3 года на сайте
Условия сделки:продажа
Показать почту
Пожаловаться на объявление
Агентство недвижимости
"АН Фаттория"

Местоположение

Минская область, д. Копище, ул. Авиационная, 15
Опубликовано: 10.02.2026

Возможно, вам будет интересно

Похожие объекты

На этой улице
1 073 802 р.
Цена за м2: 9 178 р.
д. Копище, ул. Авиационная
3-комн. кв
117
66.1
28.2 м2
1 этаж из 8
301 368 р.
Цена за м2: 9 041 р.
д. Копище, ул. Авиационная
Студия
33
24
м2
14 этаж из 23
435 959 р.
Цена за м2: 7 541 р.
д. Копище, ул. Авиационная
2-комн. кв
60.1
41.8
м2
2 этаж из 6