О доме
Коммуникации
Описание
Канадский проект. Дом удалось гармонично вписать в окружающий ландшафт.
Большая площадь открытых террас, панорамные окна подчеркивают данную связь.
Ещё одной особенностью дома выступают просторные кухни-гостиные со вторым светом.
Общая площадь здания 539.6 кв.м.
Площадь жилых помещений жилого дома 403.4 кв.м.
Дом состоит из основного блока и примыкающего к нему дополнительного объема (возможно использовать как отдельное пространство для Ваших гостей) с отдельным входом с правой стороны здания, а также через гараж.
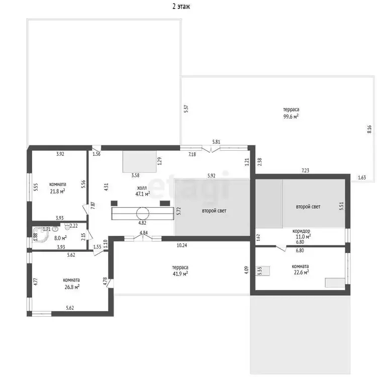
Данное дополнительное пространство (гостевой дом) имеет свою отдельную двусветную кухню-гостиную площадью 31 кв.м. с собственным выходом на террасу, просторную жилую комнату с коридором, расположенных на втором этаже, а также холл, прихожую и санузел.
В основной же части дома, на первом этаже располагается ещё большей площади двусветная кухня-гостиная (49 кв.м.), просторная жилая комната с отдельной террасой, кабинет, холл с расположенной в нем межэтажной лестницей, гардероб, тамбур, коридор и топочная с отдельным входом, большой совмещённый санузел с естественным освещением, дополнительный санузел, помещения под сауну и спортивный зал.
На втором этаже две большие жилые комнаты, санузел и коридор с выходами на террасы.
Кроме этого, имеется вместительный гараж с раздельными въездными воротами на два машиноместа площадью 42 кв.м. Высота потолков жилого дома – 3 и более метров (восьмиметровое пространство Второго света).
В доме имеется пять отдельных входов с различных сторон. Жилые комнаты, гостиная, кухня имеют собственные выходы на улицу и террасы. Все помещения удачно расположены по отношению друг к другу и обеспечат комфортное проживание всех членов семьи.
Имеется строительный и архитектурный проекты, разработанные в индивидуальном порядке, знаменитым белорусским архитектором.
Внутри дома выполнена качественная черновая отделка помещений, с продолжением дальнейших чистовых отделочных работ. Разведена вся электрика. Функционируют все коммуникации.
Коммуникации: электричество (380 и 220 В). Имеется счётчик. Дом отапливается электричеством по льготным тарифам (водяной теплый пол и радиаторы, которые предусмотрительно установлены, в том числе дополнительные, у каждого окна). Установлен электрический котел VAILLANT eloBLOCK VE, бойлер косвенного нагрева, генератор. Оптоволокно введено в дом. Также имеется новейший пеллетный твердотопливный котел TIS New DUO PELLET с теплоаккумулятором, способный полностью, автономно от электрокотла, отапливать все домовое пространство.
Собственная скважина (100+ метров глубиной) с чистейшей артезианской водой, безлимитным потреблением и десятилетней гарантией.
Звоните или пишите в мессенджерах Telegram / WhatsApp / Viber
-Приглашаем на просмотр.
-Поможем продать Вашу недвижимость для покупки этой
-Кредит/Ипотека
Организуем показ в удобное для Вас время.
ООО «ЭТАЖИ юнайтед»
УНП: 193673318
Договор 77/1 от 19.01.2026
Лицензия на оказание риэлтерских услуг №02240/460 МЮ РБ от 03.04.2023

















