Подать БЕСПЛАТНО

Продать 2-этажный коттедж в Курганах, Минская область пер. Новый, д. 1/д, 239990USD, код 652984

Минская область, д. Курганы, пер. Новый, 1/д
Показать на карте
Слуцкое направление
28 км от МКАД
690 896 р.
Код объекта: 652984
194.7 м2
8 соток
Обновлено: 01.09.2025
690 896 р.
Предложить свою цену

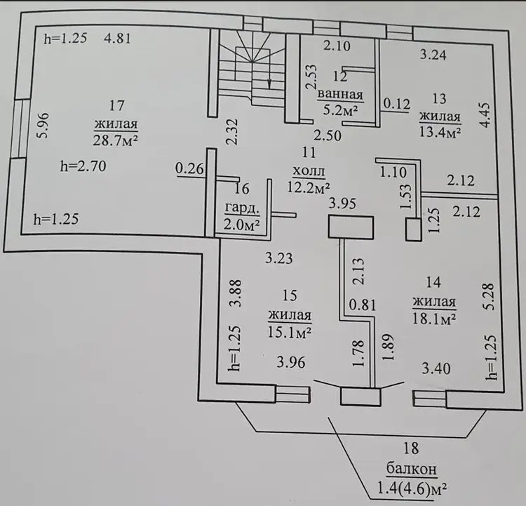
О доме

Площадь общая
194.7 м2
Площадь дома
194.7 м2
Участок
8 соток
В продаже
Целый дом
Готовность дома, %
100
Год постройки
2017

Коммуникации

Электричество: Есть

Описание

Предлагаем вашему вниманию просторный и светлый дом.

Площадь – общая 175,9, жилая 107,1, кухни 19,8, СНБ 194,7.

Высота потолков 2,70 м.

Дом строился для большой семьи, поэтому продумано все до мелочей.  Использовались только дорогие и качественные материалы.

Новым хозяевам остается вся необходимая мебель и техника.

Удобное транспортное сообщение:

Рядом остановка общественного транспорта – 1 км. До станции метро «Слуцкий гостинец» - 30 км, там же и выезд на МКАД.

Развитая инфраструктура, все рядом:

Буквально 800 м от дома расположены продуктовый магазин, почта, школа, детский сад. Всего 900 м до озера, которое пригодно для купания и рыбалки.

Продадим Вашу недвижимость для покупки этой, содействуем в получении кредита!

ООО «ЭТАЖИ юнайтед»
УНП: 193673318
Договор № 1794/1 от 29.08.2025
Лицензия на оказание риэлтерских услуг №02240/460 МЮ РБ от 03.04.2023

ВикторияАгент
2 года на сайте
Показать почту
Пожаловаться на объявление
Агентство недвижимости
ООО «ЭТАЖИ юнайтед»

Местоположение

Минская область, д. Курганы, пер. Новый, 1/д
Опубликовано: 01.09.2025