Подать БЕСПЛАТНО

ОБЪЕКТ В АРХИВЕ

Фотографии отсутствуют

Продать 1-этажный коттедж в Новом Дворе, Минская область ул. Полевая, 31000USD, код 647372

Минская область, д. Новый Двор, ул. Полевая
Показать на карте
Молодечненское направление
30 км от МКАД
94 743 р.
Код объекта: 647372
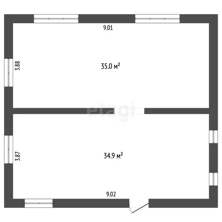
69.9 м2
18.28 соток
Обновлено: 27.03.2025
94 743 р.
Предложить свою цену

О доме

Площадь общая
69.9 м2
Площадь дома
69.9 м2
Участок
18.28 соток
В продаже
Целый дом
Готовность дома, %
50
Год постройки
2023
Материал стен
Блоки

Коммуникации

Водоснабжение: Центральное
Электричество: Нет
Канализация: Нет

Описание

Идеальный участок для Вашей мечты: Загородный дом у озера!

Продается законсервированное строение (дом)
Минский район, д. Новый Двор
Мядельское направление - всего 30 км от МКАД!

Представьте: живописное место, идеальное для строительства уютного загородного дома. Этот участок - настоящий бриллиант среди предложений!

Преимущества объекта:

Готовая коробка дома из газосиликатного блока под крышей из металлочерепицы по цене участка в этих краях.

Участок 18,28 сотки – достаточно для реализации любых идей.

Отличный асфальтированный подъезд с круглогодичным доступом.

Всего 4 минуты ходьбы до озера - наслаждайтесь рыбалкой и отдыхом на воде!

10 минут до леса - прогулки, грибы и свежий воздух.

Центральная вода прямо на границе участка.

Газ и вода проходят вдоль участка по улице.

Электричество и канализация - по улице, готово к подключению.

Подведено оптоволокно - быстрый интернет для комфортной жизни.

Разрешение на продажу строения получено и оплачено (Минрайисполком) - все документы в порядке!

Инфраструктура деревни Новый Двор:

Полный набор удобств для комфортного проживания:

Школа, аптека, ФАП, почта, магазины - все под рукой!

Остановка общественного транспорта в 7 минутах пешком

Прямое транспортное сообщение с Минском: автобус и маршрутное такси

До МКАД всего 26 минут езды по Долгиновскому тракту

Документы готовы к сделке! Этот вариант идеален как для постоянного проживания, так и для загородного отдыха - Ваша личная база спокойствия и релакса.

Поможем продать Вашу недвижимость для приобретения этого объекта!

Свяжитесь с нами:

ООО «ЭТАЖИ Юнайтед»
УНП: 193673318
Договор 1065/1 от 25.06.2025

Лицензия на оказание риэлтерских услуг №02240/460 МЮ РБ от 03.04.2023    

Специалист по недвижимостиАгент
2 года на сайте
Показать почту
Пожаловаться на объявление
Агентство недвижимости
ООО «ЭТАЖИ юнайтед»

Местоположение

Минская область, д. Новый Двор, ул. Полевая
Опубликовано: 27.03.2025