Подать БЕСПЛАТНО

Продажа 2-этажного дома в Плебанцах, Минская область ул. Центральная, 78000USD, код 654479

Минская область, д. Плебанцы, ул. Центральная
Показать на карте
Слуцкое направление
16 км от МКАД
225 865 р.
Код объекта: 654479
263.3 м2
22.2 сотки
Обновлено: 24.10.2025
225 865 р.
Предложить свою цену

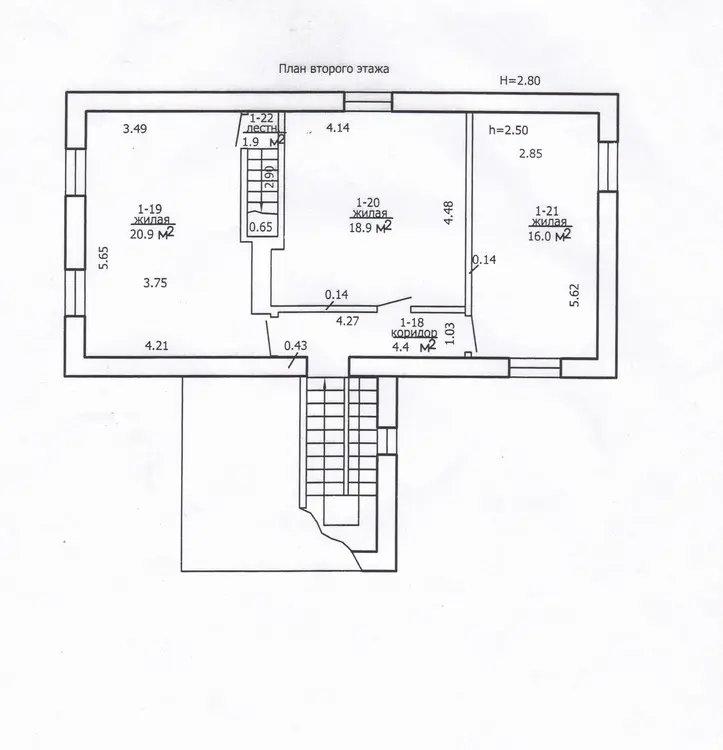
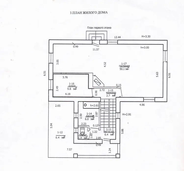
О доме

Площадь общая
263.3 м2
Площадь дома
263.3 м2
Участок
22.2 сотки
В продаже
Целый дом
Год постройки
2005
Материал стен
Кирпич
Материал крыши
Шифер

Коммуникации

Водоснабжение: Центральное
Газ: В поселке
Электричество: Есть
Канализация: 1

Описание

д.Плебанцы 16 км от Минска. Участок 22.2 сотки, пожизненно наследуемое владение. На территории расположены: коттедж, летняя кухня, хозпостройки. 1. Коттедж на 4 уровня: - 1 уровень – цоколь. Находятся: гараж, овощехранилище, сауна, сан.узел и котельная. - 2 уровень – гостиная 50м2 с камином, кухня, ванная, с/узел и открытая терраса. - 3 уровень – 3 жилых комнаты. - 4 уровень - мансарда. - общая площадь - 236,3 м2 (СНБ), общая отапливаемая – 163,8 м2, жилая – 105,9м2. - вода центральная, канализация местная, природный газ у дома, телефон. 2. Летняя кухня: печка, проведена вода и канализация, общей площадью 51 м2. В пристройке - банька с печкой, погреб, общей площадью 40 м2. Дерево, обшито сайдингом. Балонный газ. 3. Сарай блочный, площадью 57 м2. Остановка автобуса в 300 м, маршрутка в 500 м в аг. Чуриловичи. Здесь же фельдшерский пункт, школа, д/сад, почта, дом быта, 4 магазина. Дом требует ремонта. По факту вы покупаете стены дома, большой участок земли, хозпостройки и близость к Минску. Рассмотрим покупку или обмен на квартиру в Минске.
ЛюдмилаАгент
9 лет на сайте
Показать почту
Пожаловаться на объявление
Агентство недвижимости
Юриэлт

Местоположение

Минская область, д. Плебанцы, ул. Центральная
Опубликовано: 24.10.2025

Похожие объекты

На этой улице
254 822 р.
д. Плебанцы, ул. Центральная
101
54.4
м2
20.24 undefined