Подать БЕСПЛАТНО

Продажа 1-этажного коттеджа в Ружамполе, Минская область , 21000USD, код 655745

Минская область, д. Ружамполь,
Показать на карте
Брестское направление
32.6 км от МКАД
62 271 р.
Код объекта: 655745
2 комнаты
34.6 м2
25 соток
Обновлено: 18.12.2025
62 271 р.
Предложить свою цену

О доме

Площадь общая
34.6 м2
Площадь дома
34.6 м2
Участок
25 соток
В продаже
Целый дом
Готовность дома, %
100
Год постройки
1960
Материал стен
дерево
Материал крыши
Шифер

Удобства

Водоем
Лес

Коммуникации

Отопление: печное
Газ: В посёлке
Электричество: Есть
Канализация: Есть

Описание

Продаётся жилой дом в д. Ружамполь Дзержинского района!

Идеальное место для тех, кто ищет отдых на природе в окружении лесов. Местность очень живописная и спокойная, где вы сможете насладиться уединением. Деревня расположена в лесном массиве. В 2 км находится озеро, где можно отдыхать на свежем воздухе.

Месторасположение: 20 км от МКАД по Брестскому направлению, в 9 км от г. Фаниполь и в 15 км от г. Дзержинск. От трассы М1 до участка ведёт бетонная дорога длиной 2 км.

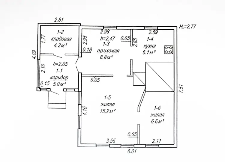
Описание дома: Одноуровневый деревянный дом 1960 года постройки общей площадью 36.4 кв. м. Планировка включает: две жилые комнаты (15.2 и 6.6 кв. м), кухню (6.1 кв. м) и прихожую (8.8 кв. м). Дом в удовлетворительном состоянии, с деревянными окнами и дверями, дощатыми полами и обоями на стенах. Отопление печное, крыша покрыта шифером.

Коммуникации: электричество (столб рядом), водоснабжение от колонки, печное отопление, центральный газопровод по улице, санузел на улице.

Земельный участок: площадь 25 соток, ровный, примыкает к лесу, не обработан, не ухожен, огорожен деревянным забором.

Транспорт и инфраструктура: доступно сообщение маршрутными такси и электричкой (остановка в 2.5 км). Несколько раз в неделю приезжает автолавка, остальная инфраструктура расположена в соседних населённых пунктах.

Этот дом — отличный вариант для тех, кто ценит спокойствие загородной жизни, но не хочет полностью отказываться от удобств.
!Смотрите еще больше домов на нашем Telegram канале @nedvizhimost_bel

ГригорийАгент
9 лет на сайте
Пожаловаться на объявление
Агентство недвижимости
Загородный дом и Недвижимость бел

Местоположение

Минская область, д. Ружамполь,
Опубликовано: 18.12.2025