О доме
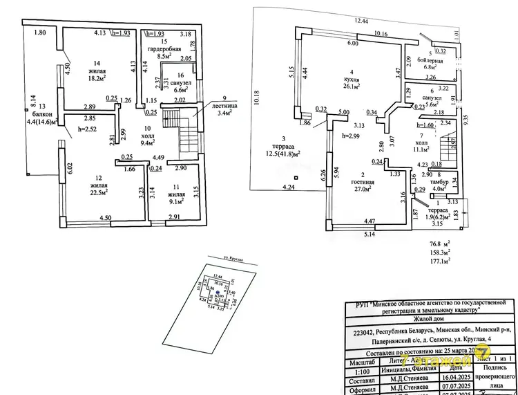
Площадь общая
177 м2
Площадь дома
177 м2
Участок
10 соток
В продаже
Целый дом
Готовность дома, %
95
Год постройки
2025
Материал стен
Сборно-щитовой
Материал крыши
Металлочерепица
Коммуникации
Отопление: электрическое
Водоснабжение: Центральное
Газ: В поселке
Электричество: Есть
Канализация: 1
Описание
Агент — агент
9 лет на сайте
Показать почту
Пожаловаться на объявление
Агентство недвижимости
7 этажей
УНП: 192361483 Лицензия: от 14.11.2014 № 225
Договор №: 863/3 от 14.06.2025












