О доме
Площадь общая
401.5 м2
Площадь дома
401.5 м2
Участок
17.98 соток
В продаже
Целый дом
Год постройки
2016
Материал стен
Блоки
Материал крыши
Шифер
Описание
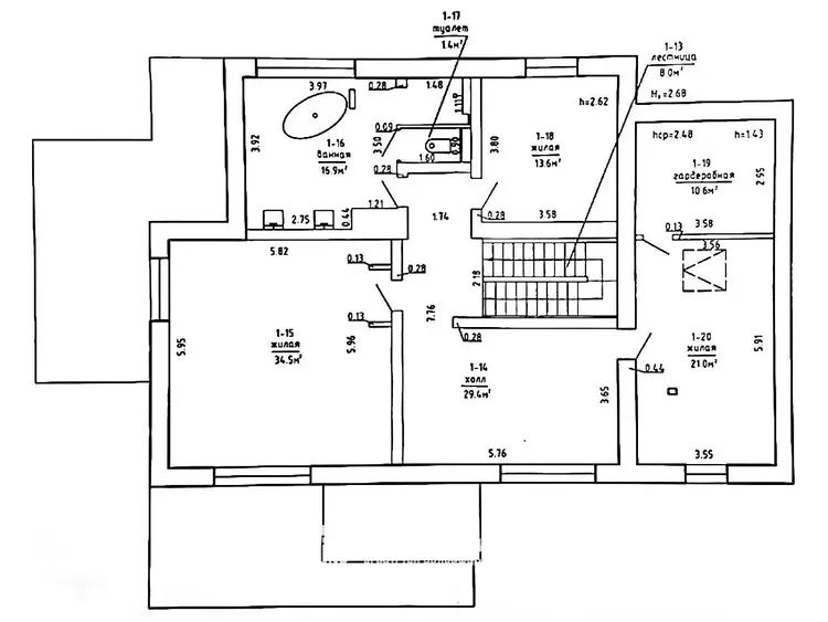
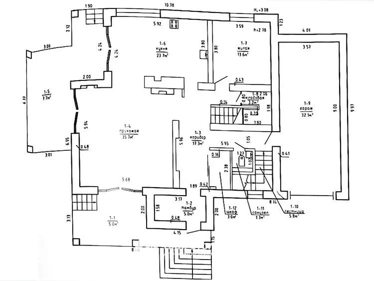
ДОФАРЕНЦИЯ! Да, это находиться в Беларуси! Уникальное по красоте место в очень живописной и экологически чистой местности. Всего 15 минут по прекрасной трассе, и вы в эксклюзивном месте. Где уникальный микроклимат и воздух, в окружении леса и тишины. Респектабельные и дружелюбные соседи. 15 минут ходьбы до водохранилища Вяча, с зонами пляжного отдыха и купания.Блочный дом 2016 года постройки. Общая площадь дома составляет 401.5 кв.м., общая площадь жилых помещений - 93.3 кв.м. Коттедж состоит из двух жилых этажей, полноценного подвального помещения под всем домом с двумя отдельными выходами, гаража 32.1 кв.м и строения под баню.На первом этаже расположены кухня 23.7 кв.м.и гостиная 35.1 кв.м с выходом на террасу., а также жилая комната и санузел. На втором этаже - 3 жилые комнаты, одна из которых с гардеробной, холл и объемный санузел 16.9 кв.м. В подвале - топочная и два подсобных помещения, которые можно использовать как игровую или релакс зоны.В доме выполнен качественный и современный ремонт: напольное покрытие на 1 и 2 этажах - керамогранит, на цокольном этаже - плитка, окна ПВХ (на 1 этаже остекление преимущественно в пол). В доме много окон, за счет чего комнаты выглядят еще более просторными и светлыми. Встроенная кухня с качественной фурнитурой, импортной техникой (духовой шкаф, печь СВЧ, посудомоечная машина, холодильник), островок с варочной панелью и мощной вытяжкой, который переходит в обеденный стол. В санузлах установлена необходимая сантехническая посуда. Камин с живым огнём и автономной системой отопления. Жилые комнаты укомплектованы необходимой мебелью. Входная металлическая дверь, в коридоре большой встроенный шкаф-купе. Ремонт выполнен по дизайнерскому проекту.Местная канализация (септик). Газовое отопление. Скважина на 2 дома, есть возможность подключиться к центральному водоснабжению. Установлена система водоочистки. Центральное электроснабжение.Крыша - катепал.По периметру дома установлено видеонаблюдение (7 камер).Участок 17,98 соток в частной собственности, имеет форму правильного прямоугольника. Ландшафтный дизайн, высажены плодово-ягодные насаждения.Асфальт до дома. Без проблем доставка продуктов Евроопт. Рядом Острошицкий городок, Пильница, Раубичи, где с удовольствием можно провести время в кафе и ресторанах. В 3 км детский садик, школа, амбулатория, магазин. Природа вокруг восхитительна. Вы удивитесь живописным местам и чистому воздуху. Вы сможете насладиться красивыми пейзажами и активным отдыхом. Всех приглашаем, на просмотр дома, в отличном месте возле пляжа и леса! ООО "Твоя столица", УНП 101136973, лицензия №02240/15 от 17.02.05г.
Агент
10 лет на сайте
Показать почту
Пожаловаться на объявление
Агентство недвижимости
ТВОЯ СТОЛИЦА АГЕНТСТВО НЕДВИЖИМОСТИ
УНП: 101136973 Лицензия: от 17.02.2005 № 47
Договор №: 12.02.2025 №26/16












