Выберите валюту для сайта:
BYN
Подать БЕСПЛАТНО

Продажа торговой точки в Домачево, 170000USD, код 998905

246.1 м2 1 этаж из 1
485 112 р.
Торговый объект
Город Домачево
Адрес Домачево
Площадь 246.1 м2
Этаж 1

Описание

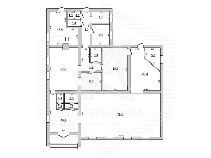
Здание кафе в собственность в г.п. Домачево Брестского района общей площадью 246,1 кв.м, расположенное на земельном участке площадью 0,1307 га. Действующий объект с оборудованием. Отдельно стоящее капитальное строение. Технические характеристики здания: фундамент бетонный, полы плитка, стены кирпичные, оштукатурены, крыша шиферная, окна, двери - ПВХ. Высота потолков - 3 м. Коммуникации: электричество - 220, 380 Вт, отопление на твердом топливе, водоснабжение - гидрофор, канализация местная. Земельный участок площадью 0,1307 га предоставлен собственнику в долгосрочную аренду (до 19.12.2057 г.) для обслуживания здания. Прилегающая территория огорожена, благоустроена, есть погреб и склад. Рассматриваются все варианты. Лот - 260260. Смотреть подробнее.

Здесь можно подписаться на рассылку новых предложений и снижения цен по КОММЕРЧЕСКОЙ НЕДВИЖИМОСТИ в Брестском регионе прямо Вам в Viber или Telegram ЗАО «АЛЬТЕРНАТИВА Брест». УНП 291427570 Лицензия № 02240/303 от 02.02.2016г. Договор номер 260/1 от 27.02.2026
Код объекта: 998905 Договор с собственником: 27.02.2026 №260/1 Опубликовано: 03.03.2026 Обновлено: 03.03.2026
0 / 0 / 0
Динамика цен за кв. метрДинамика цен

Вы просматривали

Торговый объект, 246.1 м2
Домачево
485 112 р.
1 969 р. за м2
Ярмоцик Андрей Петрович
Пожалуйста, скажите, что нашли этот объект на Domovita.by
+
Фильтр сохранен