Подать БЕСПЛАТНО

ОБЪЕКТ В АРХИВЕ

Фотографии отсутствуют

Продать 3-этажный дом в Дроздово, Минская область пер. Подлесный, 465000USD, код 628151

Минская область, д. Дроздово, пер. Подлесный
Показать на карте
Логойское направление
4 км от МКАД
1 280 378 р.
Код объекта: 628151
5 комнат
278.4 м2
16 соток
Обновлено: 30.09.2025
1 280 378 р.
Предложить свою цену

О доме

Площадь общая
278.4 м2
Площадь дома
278.4 м2
Участок
16 соток
В продаже
Целый дом
Готовность дома, %
100
Год постройки
2012
Материал стен
Красный кирпич
Материал крыши
Металлочерепица

Удобства

Баня
Лес
Камин

Коммуникации

Отопление: Газовое
Водоснабжение: Скважина
Газ: В доме
Электричество: Есть
Канализация: 1

Описание

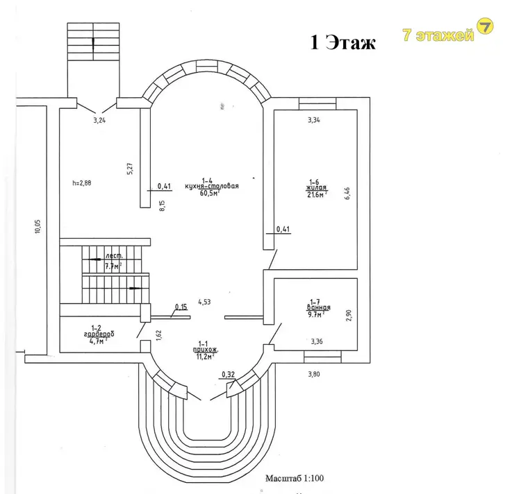
Эксклюзивный Коттедж в 4 км от МКАД в д. Дроздово, Минский р-н в окружении лесного массива Площадь застройки 508,4 м2 включает в себя: Коттедж из красного кирпича, вспомогательное здание, мангальная зона, мастерская. Мебель остается по согласованию! Коттедж площадью 278,4 м2 в 3 этажа (3-ой просторная мансарда 63,2 м2 (бильярдная с теннисным столом и шведской стенкой) 1 этаж – гардероб 4,7 м2 , совмещенный санузел с джакузи 9,7 м2 , просторная и светлая гостиная комната с камином 60,5 м2, спальня 21,6 м2, а также кухня 17,07 м2. Высота потолков – 2,88м; Полуторный этаж – гостевая комната 41,3 м2 с высотой потолка 3,2 метра;2 этаж - санузел 4,8 м2, просторный холл 30,8 м2, четыре спальни (17,2 м2, 22,2 м2, 17,3м2, 13,8 м2), Высота потолков – 2,7м; мансарда – стирочная 3,3 м2, три кладовые (8,9м2, 4,4м2, 3,3м2), комната отдыха 63,2 м2 с бильярдным и теннисным столами, а также спортивным инвентарем. На цокольном этаже – котельная 4,73 м2, 4 кладовые (25,4м2, 11,2м2, 9,4м2, 32,2м2), столярная мастерская 32,1 м2 : Пол в жилых комнатах – испанская плитка на первом этаже, ламинат на втором, в с/у испанская плитка. Металлические входные двери Сантехника Bosch, ARISTON. Качественные двухкамерные окна ПВХ Камин Настоящий твердотопливный камин Диодное освещение, Люстры Испания, Лестница на мансардный этаж Мансардный этаж: лаунж зона, мини-кухня с оборудованием и барной стойкой и столешницей из камня Пирог дома: Фундамент монолитный, цоколь обложен камнем Перекрытия - железобетон Крыша Металло-черепица Отопление двухконтурный котел BOSH Коммуникации: Собственная скважина 37 м (артезианская) фильтры очистки. Газовое отопление Канализация переливная (отдельно на дом 2 колодца по 3 кольца и отдельно на хоз постройку 2 по 3) Участок 16 соток в частной собственности, засеян газоном, растут хвойные деревья, огорожен по всему периметру забором. На участке находится баня 73 м2 без внутренней отделки, беседка, качели, мангальная зона, складское помещение площадью 240 м2, которое в настоящее время сдается в аренду. Отличное транспортное сообщение, из д.Дроздово в Минск регулярно курсируют автобусы и маршрутные такси. Откыты к диалогу!
АгентАгент
9 лет на сайте
Показать почту
Пожаловаться на объявление
Агентство недвижимости
7 этажей

Местоположение

Минская область, д. Дроздово, пер. Подлесный
Опубликовано: 30.09.2025

Похожие объекты

На этой улице
1 349 215 р.
д. Дроздово, пер. Подлесный
829
325.2
м2
16.28 соток