Подать БЕСПЛАТНО

Продать 2-этажный коттедж в Дроздово, Минская область ул. Европейская, 149000USD, код 658784

Минская область, д. Дроздово, ул. Европейская
Показать на карте
Логойское направление
2 км от МКАД
420 195 р.
Код объекта: 658784
170.1 м2
15 соток
Обновлено: 28.04.2026
420 195 р.
Предложить свою цену

О доме

Площадь общая
170.1 м2
Площадь дома
170.1 м2
Участок
15 соток
В продаже
Целый дом
Готовность дома, %
50
Год постройки
2020
Материал стен
Блоки
Материал крыши
Шифер

Коммуникации

Водоснабжение: Колодец
Электричество: Нет
Канализация: Есть

Описание

Коттедж в д. Дроздово, 5 км. от МКАД, по Логойскому направлению

Продается современный коттедж в д. Дроздово, 5 км. от МКАД, по Логойскому направлению

Дроздово - активно застраивающийся коттеджный посёлок, относится к Боровлянскому сельсовету Минского района Минской области. 

Коттедж построен с соблюдением всех норм и технологий.  

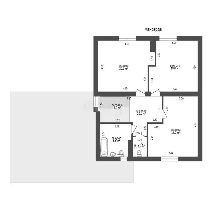
Общая площадь дома 199,3 м2, жилая 95 м2, гараж 29,2 м2.

Толщина блоков - 40 см.

На первом этаже застройки находятся: кухня, столовая, гостиная, санузел, гараж, топочная.

На втором этаже застройки находится: 3 изолированные комнаты, ванная комната, санузел.

Коттедж оштукатурен, разведена канализация и водоснабжение, подведено электричество.

Ровный, правильной формы участок 15 соток, подъезд к которому возможен с двух сторон.

Рядом с участком находится лес, что бесспорно гарантирует чистый воздух.

 

Звоните для получения более подробной информации по объекту, а также для расширения взгляда по достижению цели смены жилищных условий.

Продавайте с нами свой объект для покупки этого – это будет крайне удобно и безопасно для вас. Вы будете уверены, что продажа состоялась по максимальной рыночной цене. Все процедуры, связанные со сделкой - пройдут, не покидая помещение компании.

В компании работает ипотечный брокер – он поможет правильно выбрать программу кредитования и качественно оформить документацию для подачи заявки. Звоните – и мы расширим ваши финансовые возможности для правильного выбора объекта недвижимости.

С нами весь процесс будет безопасным и вы с уверенностью приобретете недвижимость своей мечты.

Международное агентство недвижимости “Этажи” - это полный комплекс сервисов по операциям с недвижимостью:

·  нужно продать квартиру для покупки этой? Воспользуйтесь услугой быстрой продажи 

·  или рассчитайте её стоимость бесплатно online 

·  Рассмотрите альтернативные варианты квартир в новостройках во всех ЖК Минска с бесплатным подбором.

·  Не хватает собственных средств на покупку этого объекта? Получите бесплатную консультацию специалиста по ипотечному кредитованию и онлайн-расчет максимальной суммы кредита.

·  Не рискуйте! Закажите полную юридическую проверку этой квартиры перед покупкой.   

 

ООО «ЭТАЖИ юнайтед»

УНП: 193673318

Договор    911/1 от 25.04.2026

Лицензия на оказание риэлтерских услуг №02240/460 МЮ РБ от 03.04.2023

ТатьянаАгент
2 года на сайте
Показать почту
Пожаловаться на объявление
Агентство недвижимости
ООО «ЭТАЖИ юнайтед»

Местоположение

Минская область, д. Дроздово, ул. Европейская
Опубликовано: 28.04.2026