Выберите валюту для сайта:
BYN
Подать БЕСПЛАТНО

Купить 2-этажную дачу в ДУБРАВЫ-1982 Минская область, 17000USD, код 179886

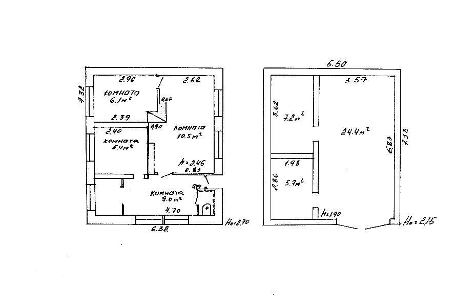
46 м2
Дача
Адрес д. 37
Направление Молодечненское
Удаленность от МКАД 43.32 км
Год постройки 1985
  
Общая площадь 46 м2
Участок 8.50 соток
Площадь дома 46 м2
Этажей 2
Материал стен Блоки
Тип отопления Печное
Канализация Есть
Удобства
Баня
Лес

Описание

Двухуровневая уютная дача в с/т «Дубравы-1982».

- Дача расположена в Молодечненском направлении, в 10 км от Радошкович.

- На электричке до центра столицы час езды, дача находится в 500 м от ж/д станция "Дубравы".

- Участок состоит из 2-х частей: 4.3 и 4.2 сотки в частной собственности.

О доме:

  • Дом 2 жилых этажа и просторный цокольный этаж. Высокий фундамент. 
  • Первый этаж, 2 спальни и просторная гостиная с камином и большим обеденным столом.
  • На втором мансардном этаже одна большая комната- спальня и место для отдыха у окна с прекрасным видом на лес и природу. 
  • В цокольном этаже расположена большая мастерская, баня с печью и камнями. И прохладный погреб для хранения продуктов.
  • Электричество по всему дому. Счетчик вынесен за пределы участка.
  • Вода сезонная на участке и заведена в дом и баню. Два бойлера. Оборудован санузел, душ и туалет. Установлены фильтры на воду.
  • Пол доска, стены обшиты вагонкой.

Свежий и чистый воздух, здесь Вы сможете отдыхать и расслабляться после работы, уединяться вдали от города. Рядом лес, куда Вы точно отправитесь за ягодами и грибами!

Код объекта: 179886 Договор с собственником: 88/1 от 2024-08-26 Опубликовано: 03.09.2024 Обновлено: 08.03.2026
0 / 1 / 291
Дача, 46 м2
ДУБРАВЫ-1982, д. 37
49 740 р.
Павел
Пожалуйста, скажите, что нашли этот объект на Domovita.by
+
Фильтр сохранен