Подать БЕСПЛАТНО

ОБЪЕКТ В АРХИВЕ

Фотографии отсутствуют

Продать 2-этажный коттедж в Ефимово, Минская область , 99900USD, код 648580

Минская область, д. Ефимово,
Показать на карте
Могилевское направление
10 км от МКАД
287 582 р.
Код объекта: 648580
217.5 м2
15.09 соток
Обновлено: 30.04.2025
287 582 р.
Предложить свою цену

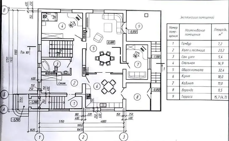
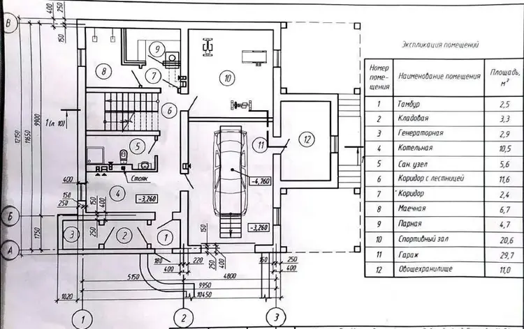
О доме

Площадь общая
217.5 м2
Площадь дома
217.5 м2
Участок
15.09 соток
В продаже
Целый дом
Готовность дома, %
70
Год постройки
2022

Коммуникации

Водоснабжение: Центральное
Газ: В доме
Электричество: Есть
Канализация: Есть

Описание

Загородный дом возле Минска.

Это тот самый вариант — чистый холст для вашего творческого вдохновения. Создайте идеальной место для жизни, где каждая деталь будет отражать вашу индивидуальность!

Ваш шанс на реализацию своей мечты такой, как вы её видите!

Шикарное место! Новая коттеджная застройка.

 

Преимущества:

Красивый вид на лес и захватывающий закат. Наслаждайтесь уединением и природной красотой в уютном и живописном уголке, обещающем тихие вечера в атмосфере умиротворения.

Удобное расположение:

Дом находится всего в 12 км от Минска, в новой коттеджной застройке, у леса: д. Ефимово, Луговослободской с/с, Минский р-н.

 

Основные характеристики:

- Общая площадь дома: 215,5 кв.м. плюс цокольный этаж.

- Площадь участка: 15,09 соток.

- Количество уровней: два этажа плюс полноценный цокольный этаж с гаражом. Высокие потолки.

Преимущества:

- Гибкая планировка: возможность адаптировать помещения по своему усмотрению и стилю жизни. Создайте пространство вокруг себя, о котором вы всегда мечтали, таким как вы это видите.

- Качественные строительные материалы: в основе дома использованы качественные материалы, что существенно упростит процесс завершения строительства.

- Коммуникации: к дому подведены все основные коммуникации – электричество, газ, вода (скважина и центральный водопровод), местная канализация, оптоволокно – что значительно упростит процесс заселения.

Дополнительные особенности:

- Потенциал для увеличения стоимости: завершение строительства и реализация ваших дизайнерских идей значительно увеличат ценность объекта.

- Просторный участок: возможность создать собственный уединенный сад, зону для отдыха или даже бассейн. Пространство для фантазии безгранично!

 

Объект с огромным потенциалом, для создания уютного и комфортного пространства отражающего ваши стиль и вкус.

Не упустите шанс создать дом вашей мечты!

 

Звоните для подробной информации и организации просмотра.

ДмитрийАгент
4 года на сайте
Показать почту
Пожаловаться на объявление
Агентство недвижимости
"Группа компаний Мариэлт"

Местоположение

Минская область, д. Ефимово,
Опубликовано: 30.04.2025