Подать БЕСПЛАТНО

Продажа 2-комнатной квартиры в Еремино, ул. Сурганова Ф.А., д. 8

Гомельская область, аг. Еремино, ул. Сурганова Ф.А., 8
Показать на карте
74 733 р.
Цена за м2: 1 658 р.
Код объекта: 1210850
2 комнаты
51 м2
1 этаж из 5
Обновлено: 18.11.2025
74 733 р.
Цена за м2: 1 658 р.
Предложить свою цену

О квартире

Площадь
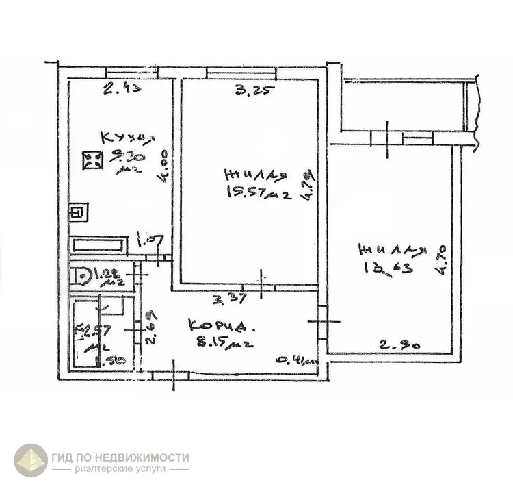
51 м2
общая
29 м2
жилая
9 м2
кухня
Отдельных комнат
2 комнаты
Санузел
Раздельный
Балкон
Балкон
Тип ремонта
С отделкой

О доме

Этаж
1 из 5
Материал стен
Панельный
Год постройки
1990

Описание

Рассмотрим вариант обмена на 1-ком. квартиру в г.Гомеле.

Продается двухкомнатная квартира в аг. Еремино, ул. Сурганова, д.8.  Расположена на первом этаже 5-эт. панельного дома. Год постройки – 1990. Общая площадь – 51 кв.м., жилая – 29 кв.м., кухня – 9.2 кв.м. Раздельный санузел. Просторный балкон из комнаты. Аккуратный ремонт - окна ПВХ, на полу линолеум, ламинат.  Входная дверь – металлическая. Есть подвал. Адекватные соседи. Дом находится в тихом и спокойном месте, при этом рядом есть все для комфортного проживания. В пешей доступности магазины, аптека, дет.сад, физкультурно-оздоровительный комплекс, остановка общественного транспорта (автобусы 38,43, маршрутка 34), школа в 2-х остановках.

В квартире отсутствуют задолженности по коммунальным платежам и др. обременения. Быстрый выход на сделку.
Если Вам понравилась эта квартира, но у Вас не продан свой объект недвижимости? Поможем Вам осуществить продажу Вашего объекта, для приобретения данного варианта.

Договор на оказание риэлтерских услуг № 201/1 от 14.11.2025 года, ООО “Гид по недвижимости”, УНП 491323159, г. Гомель, ул. Крестьянская, 32-2, Лицензия №02240/310 от 10.06.2016 – риэлтерские услуги.

Агент
9 лет на сайте
Пожаловаться на объявление
Агентство недвижимости
Гид по недвижимости

Местоположение

Гомельская область, аг. Еремино, ул. Сурганова Ф.А., 8
Опубликовано: 18.11.2025

Возможно, вам будет интересно

Похожие объекты

На этой улицеВ этом доме
107 164 р.
Цена за м2: 1 839 р.
аг. Еремино, ул. Сурганова Ф.А.
3-комн. кв
61.35
38.25
9.27 м2
3 этаж из 5
107 164 р.
Цена за м2: 1 839 р.
аг. Еремино, ул. Сурганова Ф.А.
3-комн. кв
61.35
38.25
9.27 м2
3 этаж из 5