Подать БЕСПЛАТНО

Продажа 1-этажного коттеджа в Есьмановцах, Минская область ул. Центральная, д. 1/в, 40000USD, код 654378

Минская область, д. Есьмановцы, ул. Центральная, 1/в
Показать на карте
Мядельское направление
69 км от МКАД
117 932 р.
Код объекта: 654378
67 м2
15 соток
Обновлено: 21.10.2025
117 932 р.
Предложить свою цену

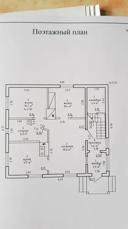
О доме

Площадь общая
67 м2
Площадь дома
67 м2
Участок
15 соток
В продаже
Целый дом
Готовность дома, %
100
Год постройки
2017
Материал стен
Дерево

Коммуникации

Газ: Нет
Электричество: Есть
Канализация: Есть

Описание

 Продаётся дом в живописной деревне Есьмановцы, рядом с Вилейским водохранилищем!

Если вы ищете уютное место для жизни или дачи — обратите внимание на этот вариант! Экологически чистое место, природа, близость к водоёмам и удобное сообщение с городами.

 Расположение:

  • Деревня Есьмановцы, рядом с агрогородком Вязынь
  • В 10 минутах ходьбы — река Вилия
  • В 100 метрах — природный источник
  • Удобное транспортное сообщение с г. Минск, Вилейка, Молодечно

 О доме:

  • Обрезной сруб из зимнего леса
  • Дом утеплён:
    • Снаружи — минеральная вата + блок-хаус
    • Внутри — стекловата + вагонка/гипсокартон
  • Крыша — песчано-цементная черепица
  • Две печи в рабочем состоянии
  • Полы подготовлены под чистовую отделку
  • Второй этаж — мансардный, утеплён, с выходом на террасу, готов к отделке

Коммуникации:

  • Центральный водопровод в процессе подключения
  • В доме разведены все коммуникации и выведены наружу

     Инфраструктура:

    • В шаговой доступности агрогородок Вязынь:
      • Продовольственные и хозяйственные магазины
      • Школа
      • Амбулатория
      • Исполком
      • Костёл и церковь

     Прекрасный вариант:

    • Для дачи или круглогодичного проживания
    • Живописное место для отдыха и жизни на природе
    • Чистый воздух, тишина и удобство цивилизации рядом
    Звоните и приезжайте на просмотр!
Анжелика АнтоновнаАгент
9 лет на сайте
Показать почту
Пожаловаться на объявление
Агентство недвижимости
Эксперт

Местоположение

Минская область, д. Есьмановцы, ул. Центральная, 1/в
Опубликовано: 21.10.2025

Похожие объекты

На этой улице
1 120 354 р.
д. Есьмановцы, ул. Центральная
200.4
108
20 м2
20 соток