Подать БЕСПЛАТНО

Купить 1-комнатную квартиру в Фаниполе, ул. Зеленая, д. 2/д

Минская область, г. Фаниполь, ул. Зеленая, 2/д
Показать на карте
203 047 р.
Цена за м2: 4 625 р.
Код объекта: 1239371
1 комната
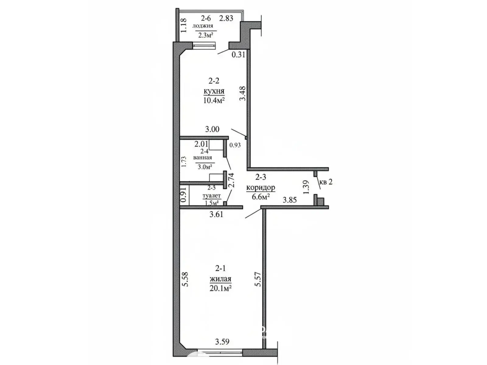
43.9 м2
1 этаж из 10
Обновлено: 29.04.2026
203 047 р.
Цена за м2: 4 625 р.
Предложить свою цену

О квартире

Площадь
43.9 м2
общая
20.1 м2
жилая
10.4 м2
кухня
Отдельных комнат
1 комната
Санузел
раздельный
Балкон
Лоджия
Тип ремонта
С отделкой

О доме

Этаж
1 из 10
Материал стен
Панельный
Год постройки
2016

Описание

Дом 2016 года постройки находится в ближайшем пригороде Минска.

Лоджия застеклена. Стеклопакеты. Отличная планировка- на обе стороны. Кухонный гарнитур. Холодильник. Счётчики. металлическая входная дверь. Ухоженный подъезд. Большая гостевая парковка. Система видеонаблюдения внутри и на придомовой территории.

Инфраструктура соответствует всем требованиям комфортной жизни. В шаговой доступности школа, строится новый детский сад. Магазины Евроопт, Ами, Омо.

Недалеко ясли-сад, средняя школа с профильными классами, библиотека, центр детского творчества, аптека, городская поликлиника, отделения банков, почта, магазины, торговые и бизнес-центры.

Фаниполь – один из самых молодых и перспективных городов-спутников. Современная скоростная трасса соединяет город со столицей. Развитая транспортная сеть (автобусы, маршрутные такси, электрички).

Живописные виды. Рядом много мест для прогулок и активного отдыха. 

Прямая продажа.

Смотреть подробнее
ООО "Твоя столица", УНП 101136973, лицензия №02240/15 от 17.02.05г.
Агент
10 лет на сайте
Показать почту
Пожаловаться на объявление
Агентство недвижимости
ТВОЯ СТОЛИЦА АГЕНТСТВО НЕДВИЖИМОСТИ

Местоположение

Минская область, г. Фаниполь, ул. Зеленая, 2/д
Опубликовано: 29.04.2026

Возможно, вам будет интересно

Похожие объекты

На этой улицеВ этом доме
301 469 р.
Цена за м2: 5 002 р.
г. Фаниполь, ул. Зеленая
2-комн. кв
59.2
29.7
11.7 м2
1 этаж из 5
301 751 р.
Цена за м2: 5 691 р.
г. Фаниполь, ул. Зеленая
2-комн. кв
53
29.2
9 м2
2 этаж из 10
195 997 р.
Цена за м2: 5 199 р.
г. Фаниполь, ул. Зеленая
1-комн. кв
37.7
17.1
8.2 м2
8 этаж из 10
195 997 р.
Цена за м2: 5 199 р.
г. Фаниполь, ул. Зеленая
1-комн. кв
37.7
17.1
8.2 м2
8 этаж из 10
177 666 р.
Цена за м2: 5 062 р.
г. Фаниполь, ул. Зеленая
1-комн. кв
35.1
17.1
м2
2 этаж из 10