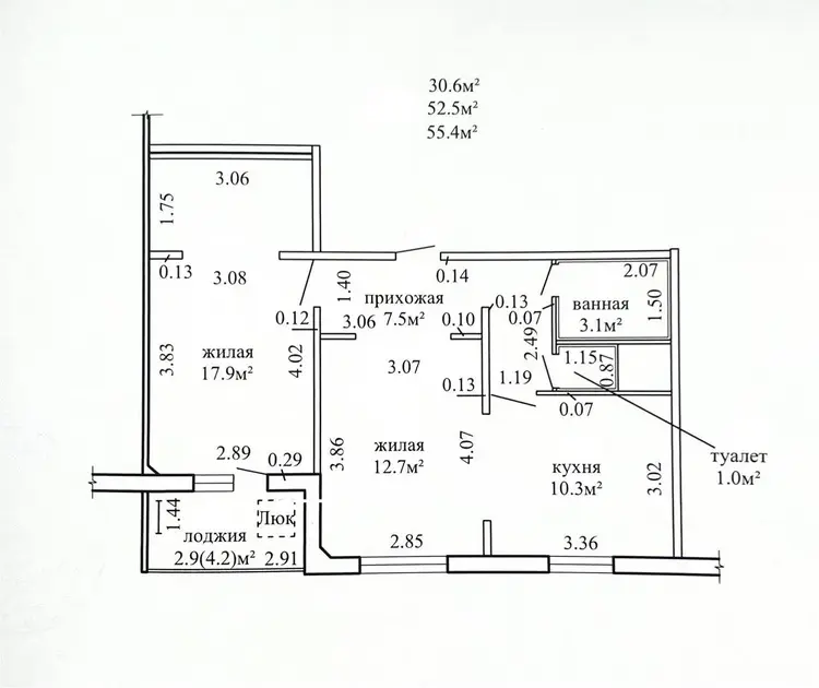
О квартире
Площадь
55.4 м2
общая
30.6 м2
жилая
10.3 м2
кухня
Санузел
раздельный
Балкон
Лоджия
Тип ремонта
Хороший
О доме
Этаж
6 из 7
Материал стен
Панельный
Год постройки
2025
Описание
Марина — Агент
8 лет на сайте
Условия сделки:продажа
Показать почту
Пожаловаться на объявление
Агентство недвижимости
Мариэлт
УНП: 192776463 Лицензия: от 04.04.2017 № 59
Договор №: 98/1 от 2026-01-26



























