Подать БЕСПЛАТНО

Продать 1-этажный коттедж в Гаище, Минская область ул. Южная, 210000USD, код 635579

Минская область, д. Гаище, ул. Южная
Показать на карте
Логойское направление
34.86 км от МКАД
624 870 р.
Код объекта: 635579
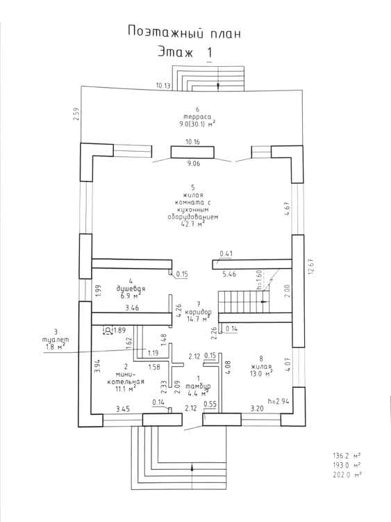
202 м2
18 соток
Обновлено: 07.05.2024
624 870 р.
Предложить свою цену

О доме

Площадь общая
202 м2
Площадь дома
202 м2
Участок
18 соток
В продаже
Целый дом
Год постройки
2023

Описание

Современный коттедж возле Силичей!

Коттедж расположен на участке 18 соток. Сейчас на участке ведутся ландшафтные работы.

Наружные стены керамический блок 500, перегородки – кирпич и керамические блоки. Крыша  - керамическая черепица.

В самом коттедже ведутся работы по чистовой отделке. Разведена и установлена сантехника в санузлах. Санузлы и ванна облицованы современной плиткой. Разведена электрика, отопление.

Асфальтированные подъездные пути. Деревня находится в 2 км от  Республиканский горнолыжный центр Силичи и в 5 км от Логойска.

Ходит транспорт (автобус, маршрутка).

 

Прямая продажа. Торг.

Организуем просмотр в любое время.

Поможем продать Вашу недвижимость для покупки этой.

ВероникаАгент
2 года на сайте
Показать почту
Пожаловаться на объявление
Агентство недвижимости
Результативная недвижимость

Местоположение

Минская область, д. Гаище, ул. Южная
Опубликовано: 07.05.2024

Похожие объекты

На этой улице
274 943 р.
д. Гаище, ул. Южная
63.6
33.7
м2
14.9 соток