Выберите валюту для сайта:
BYN
Подать БЕСПЛАТНО

Продажа 2-этажной дачи в ГЛОБУС-9 Минская область, 11800USD, код 183137

48.3 м2
36 106 р.
Дача
Город ГЛОБУС-9
Адрес ГЛОБУС-9
Направление Молодечненское
Удаленность от МКАД 35.87 км
Год постройки 1986
  
Общая площадь 48.3 м2
Участок 4.15 соток
Площадь дома 48.3 м2
Этажей 2
Тип отопления печное
Водоснабжение Сезонное
Канализация Есть
Удобства
Лес

Описание

Продаётся садовый домик в СТ «Глобус-9», Молодечненского района!

Месторасположение: 42 км от МКАД, в Молодечненском направлении, до ж/д ст. "Пралески" 900 м.

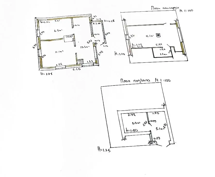
Описание: двухуровневый кирпичный садовый домик общей площадью 48,3 кв.м, 1987 г.п., три комнаты, кухня, веранда, подвальное помещение.
Первый этаж: две комнаты (11,1 и 8,5 кв.м), кухня 10,3 кв.м, веранда, имеется подвальное помещение 10,1 кв.м, входная дверь деревянная, межкомнатные деревянные, пол - доска пола, окна деревянные, отделка – вагонка.

Второй этаж: одна большая комната 16,2 кв.м, имеется подвальное помещение 10,1 кв.м, межкомнатная дверь деревянная, пол - доска пола, окна деревянные, отделка – вагонка. Печное отопление. Крыша - шифер. Продаётся с мебелью.

Коммуникации: свет есть, вода сезонная, отопление - печное и камин, с/у на улице.

Земельный участок в частной собственности 4,15 соток, ровный, ухоженный, огорожен частично. На участке стоит: сарай и туалет. В шаговой доступности магазины (продовольственные, строительный), ежедневно работает продовольственный рынок, на выходных - вещевой рынок, кафе. Транспортное сообщение: до ж/д ст. "Пралески" 900 м пешком, до станции "Дубравы" 10 мин ходьбы.

Живописнейшее место. Рядом грибной и ягодный лес. Доброжелательные соседи. Отличное место для круглогодичного отдыха.
!Смотрите еще больше дач на нашем Telegram канале @nedvizhimost_bel

Код объекта: 183137 Договор с собственником: 89/1 от 10.06.2025 Опубликовано: 12.06.2025 Обновлено: 16.03.2026
1 / 84 / 1247
Дача, 48.3 м2
ГЛОБУС-9
35 504 р.
Григорий
Пожалуйста, скажите, что нашли этот объект на Domovita.by
+
Фильтр сохранен