Подать БЕСПЛАТНО

Продажа 2-этажного коттеджа в Городнянском Мхе, Витебская область ул. Озерная, д. 33, 251000BYN, код 658203

Витебская область, д. Городнянский Мох, ул. Озерная, 33
Показать на карте
254 800 р.
Код объекта: 658203
4 комнаты
2447 м2
27 соток
Обновлено: 07.04.2026
254 800 р.
Предложить свою цену

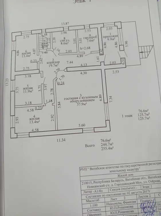
О доме

Площадь общая
2447 м2
Площадь дома
2447 м2
Участок
27 соток
В продаже
Целый дом
Год постройки
2017
Материал стен
Блоки

Коммуникации

Водоснабжение: Скважина
Газ: В поселке
Электричество: Есть
Канализация: 1

Описание

Дом на берегу озера Городно 2017 ГП из КЗ/ бетонных блоков, своя скважина, станция обезжелезования, твердотопливный котел, бойлер на 150 л, теплый пол в санузле Общая площадь 244.7м2...жилая 76.6 м2... Функциональная планировка дома: 3 комнаты отдельные, гостиная с кухонным оборудованием -37.9 м2... Совмещённый сан узел 8,6 м2, есть гардеробная и прихожая... Окна ПВХ, двери межкомнатные массив, имеется встроенная лестница на чердак, кованая лестница ведёт в подвальное помещение, где место для бильярда, для хранения заготовок, гараж на 2 машины с автоматической системой открытия.. Участок ровный 15 сот. огорожен металлическим забором, ответными воротами , а вокруг ещё 12 сот для ведения хозяйства Рассмотрим варианты обмена Возможна продажа в кредит работаем со всеми банками по программе кредитования недвижимости и жилищный баланс Показ в удобное для вас время Договор 78/2 от 06.04.2026 ООО ВТБ риэлт УНП 391845541 лицензия выдана Министерством Юстиции Республики Беларусь 22404680809.2023.52 бессрочная на право осуществления риэлторской деятельности. Парковочное место, Интернет, Видеонаблюдение, Закрытая территория
Антонина ИвановнаАгент
2 года на сайте
Показать почту
Пожаловаться на объявление
Агентство недвижимости
ВТБ-риэлт

Местоположение

Витебская область, д. Городнянский Мох, ул. Озерная, 33
Опубликовано: 07.04.2026