Купить складское помещение на ул. Толкачёва, д. 8 в Городке

483.3 м2
69 243 р.
55 394 р.
Склад
Город Городок
Адрес ул. Толкачёва, д. 8
Площадь 483.3 м2
Удобства
Отдельный вход

Описание

В г. Городок продается большой участок(37,85 соток) с административными зданиями.

Целевое назначение участка - для размещения производственных и складских помещений.

Участок огражден.

Здания в праве хозяйственного ведения.

По улице электричество, центральный водопровод, газ.

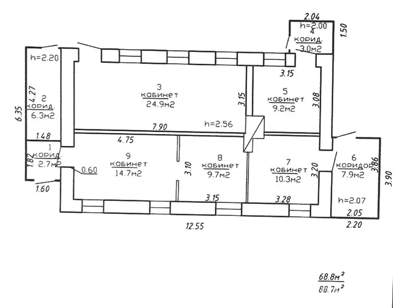
Основное здание - 88,7 кв.м, 3 холодные пристройки, уборная. Год постройки 1968, фундамент ленточный, стены-кирпич, крыша-шифер.

Отопление-печное. 5 комнат, плюс 3 коридора.

Следующее здание - специализированных складов, площадь 51,9 кв.м. Год постройки 1957, фундамент-ленточный, стены-кирпич, крыша-шифер, 3 помещения внутри.

Третье здание - 57,6 кв.м, специализированных складов. Год постройки 1970. Фундамент ленточный, стены-кирпич, крыша-шифер. 2 помещения внутри.

Четвертое здание специализированное для обработки древесины и производства изделий из дерева - 285,1 кв.м. Год постройки 1971. Фундамент бетонный, стены-кирпич, крыша-шифер. 6 помещений внутри здания.

Все здания в 1 уровень с отдельными входами. Асфальт к участку.

Рядом находится организация "Ланатекс", евроопт, магазины, заправка Лукойл, жилая зона. Недалеко водоем, до леса 2 км. До г. Витебск 25 км.

!Смотрите еще больше участков на нашем Telegram канале @nedvizhimost_bel

Код объекта: 994741 Договор с собственником: 36/1 от 12.03.2025 Опубликовано: 17.03.2025 Обновлено: 15.05.2026
0 / 0 / 27
Динамика цен за кв. метрДинамика цен
Похожие объекты
Адрес
Комнат
Площадь
Этаж
Цена за м2
Цена
353.8 м2
424 р. за м2

Вы просматривали

Склад, 483.3 м2
Городок, ул. Толкачёва, д. 8
55 394 р.
114 р. за м2
Пожалуйста, скажите, что нашли этот объект на Domovita.by
+
Фильтр сохранен