Выберите валюту для сайта:
BYN
Подать БЕСПЛАТНО
Объект в архиве
К результатам поиска

Купить 2-этажную дачу в Горошках Гродненская область, 15000USD, код 184295

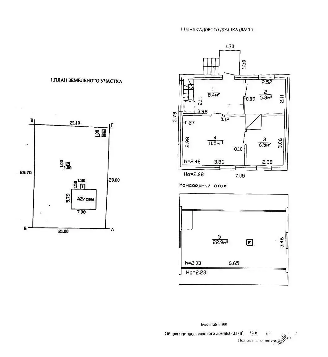
54.6 м2
Объект в архиве
Уважаемые пользователи, данное объявление больше не актуально. Поэтому мы убрали все контакты продавца.
Продолжить поиск
Дача
Город Горошки
Адрес Горошки
Удаленность от МКАД 22 км
Год постройки 1998
  
Общая площадь 54.6 м2
Участок 12.10 соток
Площадь дома 54.6 м2
Этажей 2
Материал стен Кирпич
Тип отопления Печное
Канализация Нет

Описание

Редкое предложение! Продается дача с 2-мя участками в 25 км от Минска!

Дача расположена в СТ «Горошки», сразу за комплексом «Линия Сталина» по Молодечненской трассе.

Дом сборно-щитовой, обложен кирпичом, отапливается печью. Есть погреб.

На участке растет много плодовых деревьев, кустарников и декоративных растений.

Вода в СТ сезонная,  введена в дом и душевую (расположена в отдельном строении).

Недалеко от СТ расположен лесной массив.

Ж/д станция Анусино расположена в 2-км от СТ, а по Молодечненской трассе ходят маршрутки.

Дорогу зимой чистят, так как в СТ есть постоянно проживающие.

Отличный вариант для загородного отдыха на природе!

 

 

Лицензия: №02240/362 МЮ РБ, 31.07.2018

Код объекта: 184295 Договор с собственником: 1446/1,1447/1 от 2025-10-04 Опубликовано: 07.10.2025 Обновлено: 30.10.2025
0 / 0 / 0
+
Фильтр сохранен