Выберите валюту для сайта:
BYN
Подать БЕСПЛАТНО

Купить офис на ул. Школьная в Копаткевичах, 25000USD, код 8667

3830 м2
90 264 р.
75 220 р.
Офис
Адрес ул. Школьная
Год постройки 1966 г.
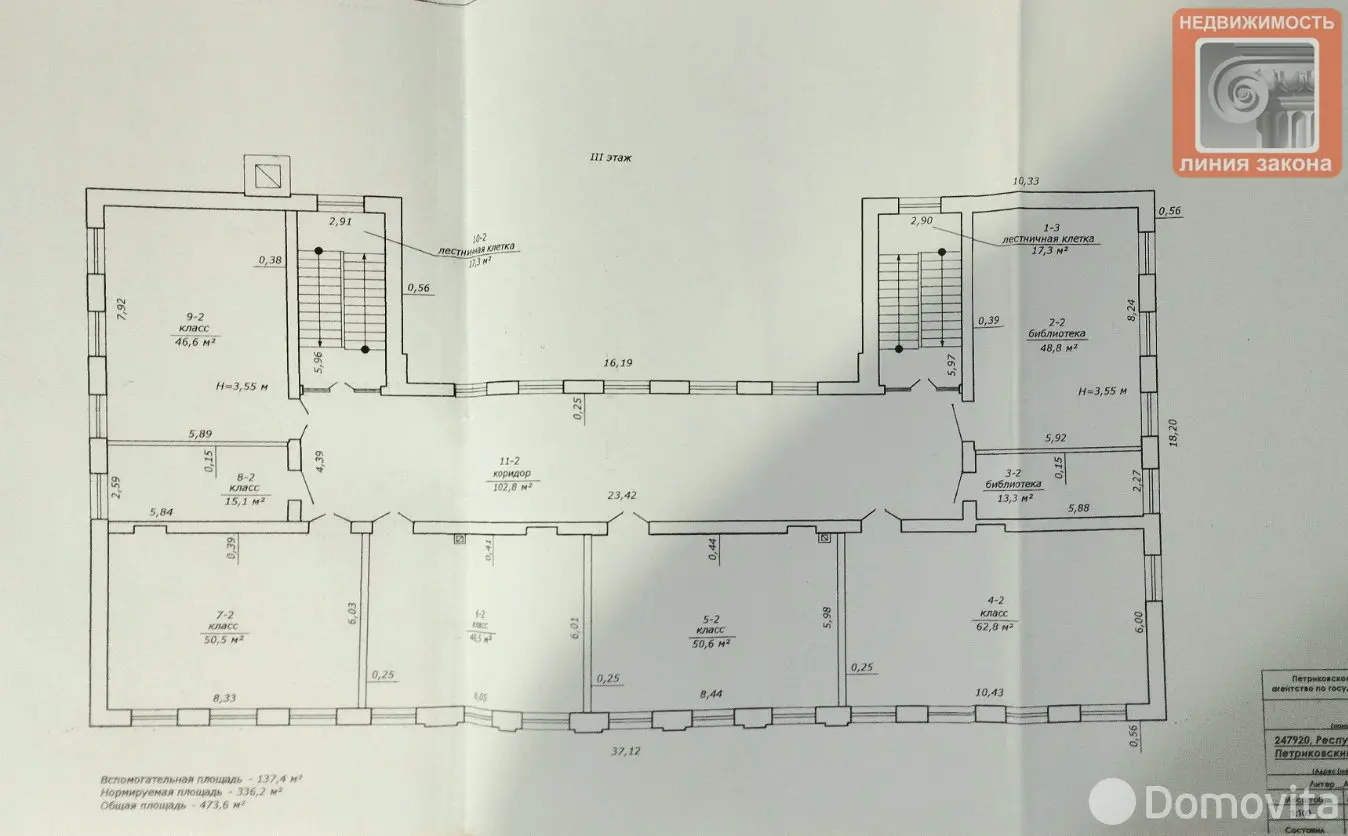
Площадь 3830 м2

Описание

ГОТОВЫЙ БИЗНЕС В БЕЛАРУСИ!Здание + Земля 2,2 Га Продается действующий комплекс зданий (бывший дом-интернат) с огромным земельным участком 2,2 Га в собственности.ОТЛИЧНО ПОДОЙДЁТ ДЛЯ:— Базы отдыха— Гостиницы— Торгового центра— Склада — Производства— Пансионата / частной школы— Бизнеса в Беларуси с минимальными вложениямиОПИСАНИЕ ОБЪЕКТОВ:— Общая площадь зданий — 3834 м²— Земля — 2,2123 Га (в собственности, без обременений)— 2 корпуса — 3 этажа каждый— Центральное отопление— Вода горячая / холодная— Канализация централизованная— Электричество — Видеонаблюдение — Свой санузел — Территория озеленена (ели и другие деревья)— Огромная парковка и удобный подъездПосёлок активно развивается:— Строится новый стадион напротив объекта— В поселке планируется строительство соляного рудника — это новые рабочие места и рост спроса на жильё и бизнес.— Рядом банк, магазины, школа
Код объекта: 8667 Договор с собственником: 05.05.2025 №185/1 Опубликовано: 07.05.2025 Обновлено: 05.03.2026
Динамика цен за кв. метрДинамика цен

Вы просматривали

Офис, 3830 м2
Копаткевичи, ул. Школьная
75 220 р.
20 р. за м2
Оксана
Пожалуйста, скажите, что нашли этот объект на Domovita.by
+
Фильтр сохранен