Выберите валюту для сайта:
BYN
Подать БЕСПЛАТНО

Купить офис на ул. Молодёжная в Мачулищах, 170000USD, код 10126

800 м2 2 этаж из 2
485 112 р.
Офис
Город Мачулищи
Адрес ул. Молодёжная
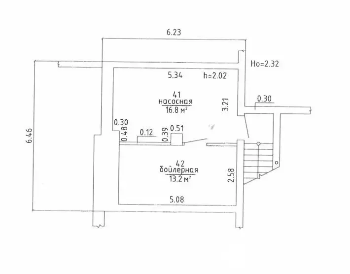
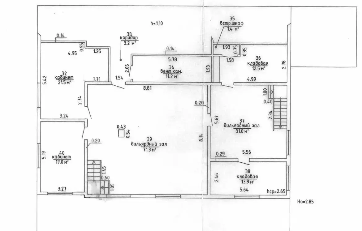
Площадь 800 м2
Этаж 2

Описание

Представляем вашему вниманию универсальное здание, которое идеально подходит для успешного ведения различных видов  бизнеса в растущем городском поселке возле Минска

 Что мы предлагаем?

• Современное здание с огороженной территорией, с возможностью организации собственной парковки

• Прилагающая земля площадью 5с  соток находится  в статусе аренды, с целевым назначением для обслуживания здания

• Участок находится по соседству с популярной точкой притяжения жителей Мачулищ - большим Евроопт Маркетом и новыми жилыми домами, также в 200м от остановки общественного транспорта

 

Технические характеристики:

Блочное здание с двухскатной крышей из шифера, пластиковые стеклопакеты, центральное водоснабжение и  канализация.

Без отделки

 Локация:

Находится всего в 14 км от МКАД, в перспективном растущем  городском поселке с развитой инфраструктурой - Мачулищи, рядом с аэродромом  «Мачулищи», с населением  12 000 человек, с хорошим транспортным сообщением с Минском:

железная дорога, автобус, маршрутное такси Это открывает широкие возможности для бизнеса!

 Возможности использования:

• Агроусадьба для проведения праздников.

• СПА-Wellness центр с номерами для отдыха

• Развлекательный центр

• Гостиничный бизнес

• Офисы

• Склад

• Производственные помещения

• Мастерские помещения

• Автомойка, СТО, Шиномонтаж

 • Торговые помещения в аренду и многое другое.

 

Не упустите шанс стать владельцем этого уникального объекта, который имеет большой бизнес-потенциал!

Покупатель не оплачивает услуги агентства!

Код объекта: 10126 Договор с собственником: 150/1 от 2026-02-03 Опубликовано: 27.02.2026 Обновлено: 27.02.2026
Динамика цен за кв. метрДинамика цен

Вы просматривали

Офис, 800 м2
Мачулищи, ул. Молодёжная
485 112 р.
571 р. за м2
Наталья
Пожалуйста, скажите, что нашли этот объект на Domovita.by
+
Фильтр сохранен