Выберите валюту для сайта:
BYN
Подать БЕСПЛАТНО

Снять офис на ул. Медовая, д. 1 в Гродно, 1656USD, код 16488

207 м2 2 этаж из 3 Ленинский район / Переселка
4 929 р./мес.
Офис
Город Гродно
Район Ленинский район
Микрорайон Переселка
Адрес ул. Медовая, д. 1
Год постройки 2020 г.
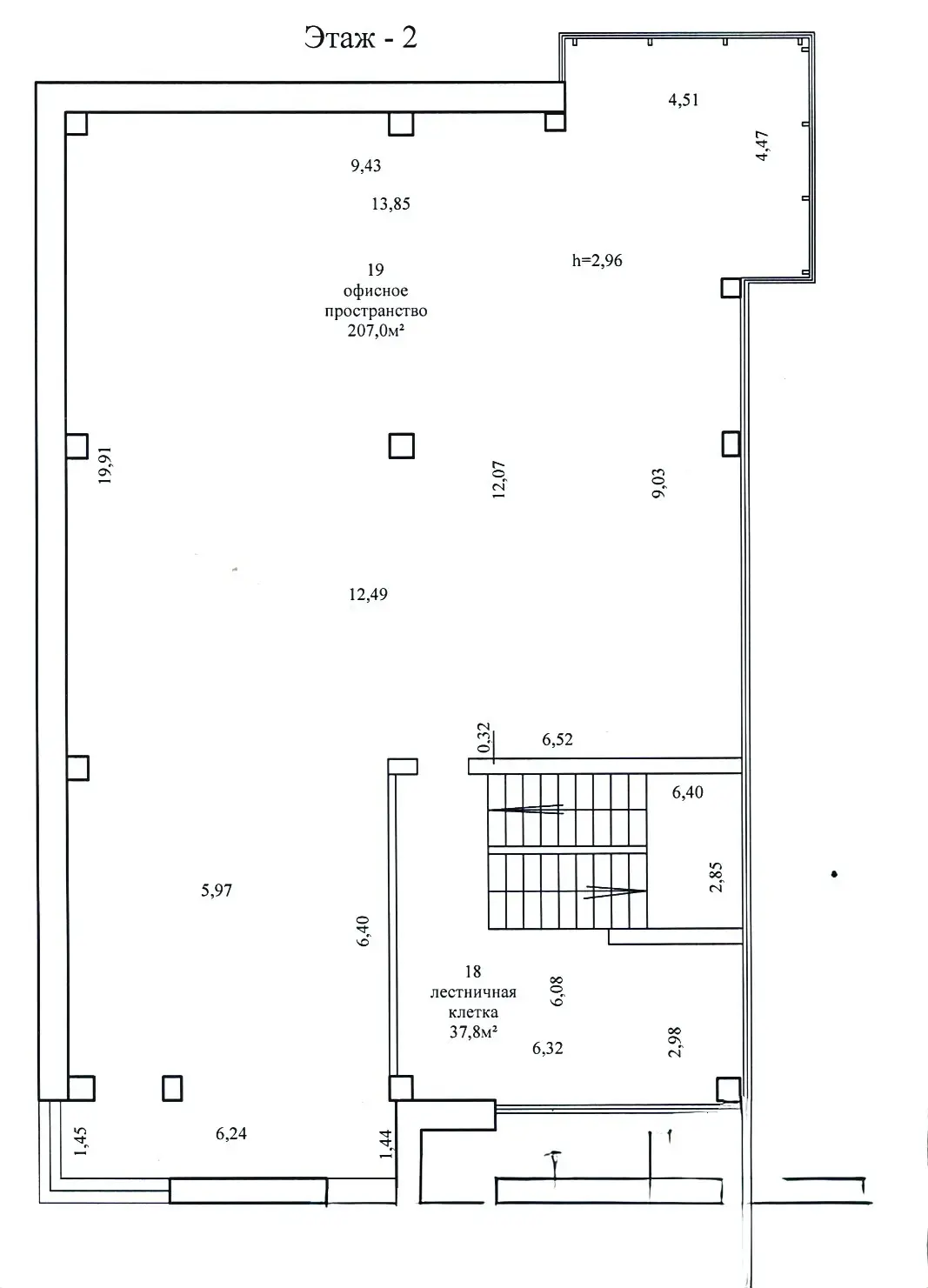
Площадь 207 м2
Помещений 1
Этаж 2

Описание

Офисное помещение Ул.Медовая, д.1 2/3 этажного дома 2020 года постройки 207 кв.м. Сдается в аренду офисное помещение на 2 этаже 207 квадратных метров с открытым современным пространством, большими окнами, обеспечивающими светом. Open space - современное решение организации работы в офисе. Есть отдельный кабинет для переговоров. 2 санузла. Здание новое, отделка выполнена в современном стиле. Возможность Вашей рекламы на крупной афише бегущей строки в проездном месте в центральной части города. Офис укомплектован мебелью для множества посадочных рабочих мест. Работать очень комфортно и стильно! Дополнительное пользование зонами отдыха (кухней, спортзалом, игровой комнатой) оговаривается в индивидуальном порядке. Есть парковочные места за домом. Удобный подъезд.
Код объекта: 16488 Договор с собственником: #3/6А от 09.08.2025 Опубликовано: 13.02.2026 Обновлено: 15.03.2026
Динамика цен за кв. метрДинамика цен
Похожие объекты
Адрес
Комнат
Площадь
Этаж
Цена за м2
Цена
2-комнатная
407 м2
2 из 3
24 р. за м2

Вы просматривали

4 929 р./мес. 24 р. за м2
Ленинский р-н
Офис, 207 м2
Гродно, ул. Медовая, д. 1
4 929 р./мес.
24 р. за м2
Ольга
Пожалуйста, скажите, что нашли этот объект на Domovita.by
+
Фильтр сохранен