Выберите валюту для сайта:
BYN
Подать БЕСПЛАТНО

Купить офис на пер. Доватора, д. 17А в Гродно, 250000USD, код 10113

280.4 м2 1 этаж из 3 Ленинский район / Переселка
737 975 р.
Офис
Город Гродно
Район Ленинский район
Микрорайон Переселка
Адрес пер. Доватора, д. 17А
Год постройки 2015 г.
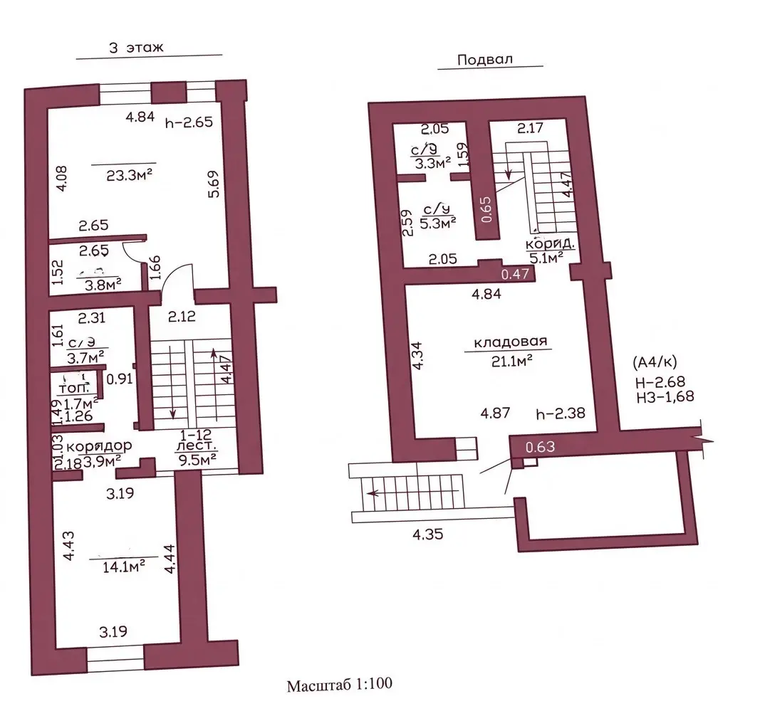
Площадь 280.4 м2
Помещений 6
Этаж 1

Описание

Помещение Доватора 17а Общая площадь 280,4 кв.м. 3 этажа, подвал и мансарда Кирпичный дом 2015 года постройки Продажа перспективного помещения в центре города, ул. Доватора 17а. Продаётся многофункциональное помещение общей площадью 280,4 кв.м в кирпичном доме 2015 года постройки, расположенном в шаговой доступности от центра города. Объект занимает несколько уровней: подвал, три полноценных этажа и мансардный этаж с окном, что позволяет гибко зонировать пространство под разные задачи. В помещении выполнен качественный современный ремонт: полы облицованы плиткой, высота потолков на этажах от 2,65 до 3 м, на каждом уровне оборудованы санузлы. На крайних этажах организована квартира с жилыми комнатами, что даёт возможность сочетать проживание и ведение бизнеса либо использовать объект как готовый вариант под краткосрочную аренду. Есть отдельные входы, что удобно для организации различных форматов: • медицинский центр или кабинет частной практики; • салон красоты, SPA, студию массажа; • офисы или представительство компании; • апарт-отель / посуточную аренду; • 3-этажную квартиру в центре города с дополнительными возможностями монетизации. Помещение в отличном состоянии, не требует вложений: можно заходить и работать или жить. На последнем этаже организована квартира. Юридическая чистота сделки гарантирована. Все дополнительные вопросы, организация показа и обсуждение условий — по телефону.
Код объекта: 10113 Договор с собственником: #131/17 от 19.02.2026 Опубликовано: 24.02.2026 Обновлено: 24.02.2026
Динамика цен за кв. метрДинамика цен
Похожие объекты
Адрес
Комнат
Площадь
Этаж
Цена за м2
Цена
1-комнатная
44.6 м2
2 из 3
4 428 р. за м2
1-комнатная
39 м2
1 из 4
5 677 р. за м2
4-комнатная
92 м2
1 из 2
4 813 р. за м2
7-комнатная
884.7 м2
1 из 4
6 673 р. за м2
1-комнатная
43.5 м2
1 из 5
5 225 р. за м2

Вы просматривали

737 975 р. 2 632 р. за м2
Ленинский р-н
590 380 р. 609 р. за м2
Октябрьский р-н
5 903 800 р. 6 673 р. за м2
Ленинский р-н
Офис, 280.4 м2
Гродно, пер. Доватора, д. 17А
737 975 р.
2 632 р. за м2
Ольга
Пожалуйста, скажите, что нашли этот объект на Domovita.by
+
Фильтр сохранен