Выберите валюту для сайта:
BYN
Подать БЕСПЛАТНО

Купить офис на ул. Медовая, д. 1 в Гродно, 2000000USD, код 10196

884.7 м2 1 этаж из 4 Ленинский район / Переселка
5 903 800 р.
Офис
Город Гродно
Район Ленинский район
Микрорайон Переселка
Адрес ул. Медовая, д. 1
Год постройки 2020 г.
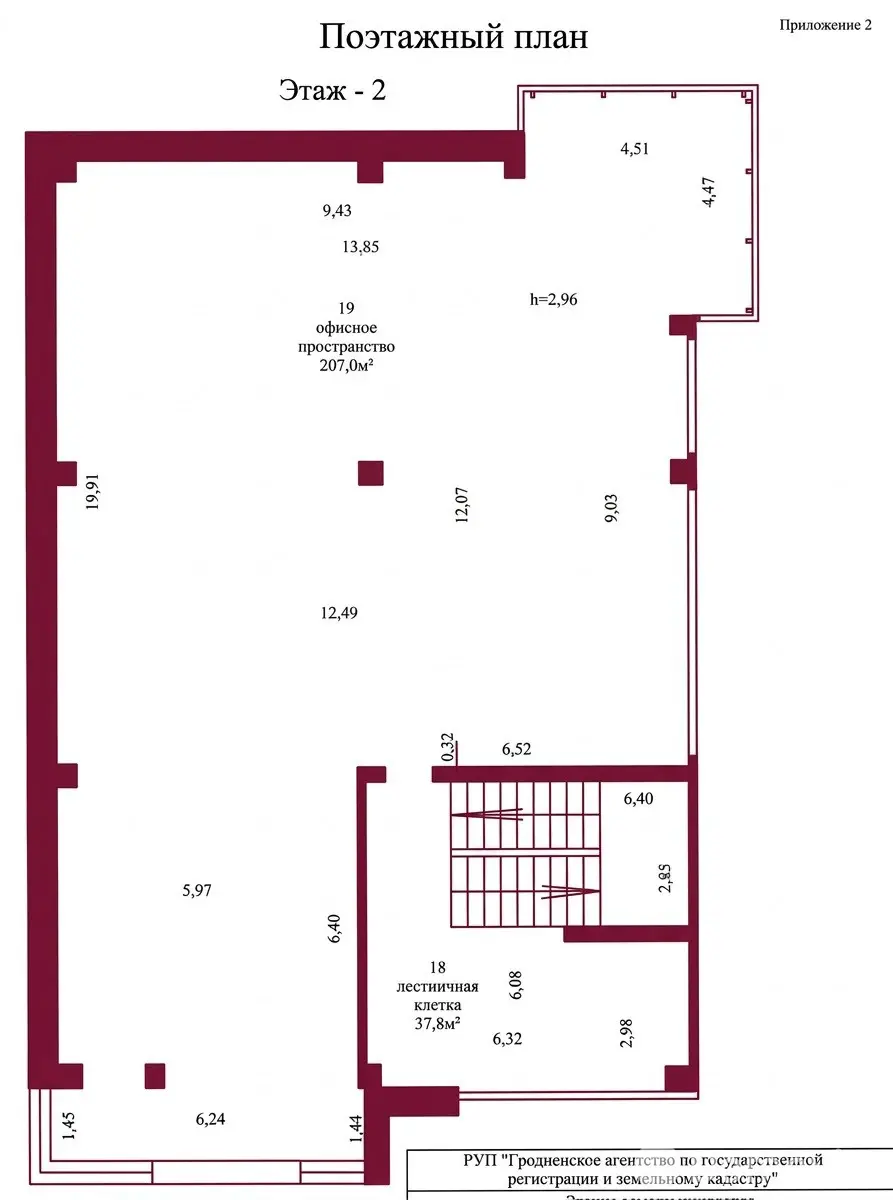
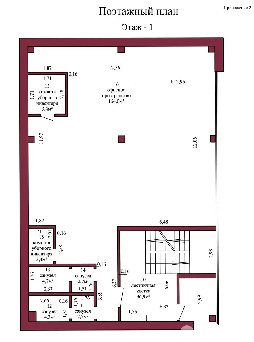
Площадь 884.7 м2
Помещений 7
Этаж 1

Описание

Административное здание Ул.Медовая, д.1 Общая площадь 884,7 кв.м. Блочное здание 2020 года постройки Участок на праве аренды 3,5 сотки Продаётся современное административное здание по адресу: г. Гродно, ул. Медовая, 1 Предлагается к продаже стильное и функциональное административное здание общей площадью 884,7 м², расположенное на 4 этажах, включая цокольный уровень. Объект 2020 года постройки, выполнен из блочных конструкций, отличается современным архитектурным решением, презентабельным внешним видом и качественным внутренним наполнением. Земельный участок площадью 3,5 сотки находится на праве аренды. Здание отлично подходит для размещения бизнеса, которому важны комфорт, статус, современная планировка и удобная логистика. Пространство организовано рационально: светлые офисные помещения, большие окна, хорошая инсоляция, современная отделка, удобные зоны общего пользования. В здании предусмотрены санузлы на каждом этаже, что особенно удобно для большого количества сотрудников и посетителей. Особое преимущество объекта — цокольный этаж, где оборудована полноценная комната отдыха с кухней. Это делает здание более удобным для ежедневной работы сотрудников, проведения перерывов и организации комфортной корпоративной среды. Пространство можно использовать как зону отдыха, кухню, место для неформальных встреч или дополнительную служебную площадь. Здание расположено в проходном и проездном месте, что даёт дополнительное преимущество для имиджа и продвижения бизнеса. Есть возможность размещения рекламы на бегущей строке, что позволит сделать вашу компанию более заметной и узнаваемой. Объект может быть интересен: •IT-компаниям и технологическим командам; •крупным офисам и филиалам компаний; •медицинским центрам, частным клиникам, диагностическим и стоматологическим кабинетам; •учебным центрам, языковым школам, образовательным проектам; •call-центрам, сервисным и клиентским службам; •консалтинговым, бухгалтерским и юридическим компаниям; •банкам, страховым и финансовым организациям; •представительствам, административным и корпоративным штаб-квартирам; •showroom-формату, если нужен современный презентабельный офисный объект. Это предложение для тех, кто ищет готовый современный объект для бизнеса, где можно удобно разместить команду, принимать клиентов и развивать компанию в достойной, статусной локации.
Код объекта: 10196 Договор с собственником: #221/17 от 18.03.2026 Опубликовано: 21.03.2026 Обновлено: 21.03.2026
Динамика цен за кв. метрДинамика цен
Похожие объекты
Адрес
Комнат
Площадь
Этаж
Цена за м2
Цена
1-комнатная
44.6 м2
2 из 3
4 428 р. за м2
1-комнатная
39 м2
1 из 4
5 677 р. за м2
6-комнатная
280.4 м2
1 из 3
2 632 р. за м2
4-комнатная
92 м2
1 из 2
4 813 р. за м2
1-комнатная
43.5 м2
1 из 5
5 225 р. за м2

Вы просматривали

590 380 р. 609 р. за м2
Октябрьский р-н
5 903 800 р. 6 673 р. за м2
Ленинский р-н
Офис, 884.7 м2
Гродно, ул. Медовая, д. 1
5 903 800 р.
6 673 р. за м2
Ольга
Пожалуйста, скажите, что нашли этот объект на Domovita.by
+
Фильтр сохранен