Подать БЕСПЛАТНО

ОБЪЕКТ В АРХИВЕ

Фотографии отсутствуют

Продажа 1-этажного коттеджа в Кайково, Минская область ул. Лесная, 96900USD, код 642036

Минская область, д. Кайково, ул. Лесная
Показать на карте
Слуцкое направление
23 км от МКАД
291 553 р.
Код объекта: 642036
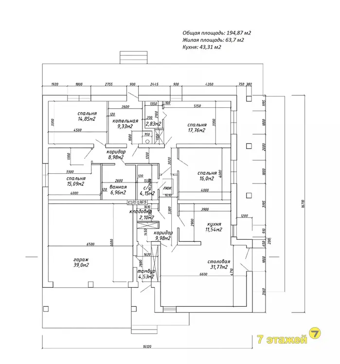
194.87 м2
14.97 соток
Обновлено: 02.10.2025
291 553 р.
Предложить свою цену

О доме

Площадь общая
194.87 м2
Площадь дома
194.87 м2
Участок
14.97 соток
В продаже
Целый дом
Готовность дома, %
70
Год постройки
2020
Материал стен
Блоки
Материал крыши
Металлочерепица

Удобства

Лес
Гараж

Коммуникации

Водоснабжение: Центральное
Газ: В поселке
Электричество: Есть
Телефон: Да
Канализация: 1

Описание

Возобновляем продажу! Продается большой Дом площадью застройки 194,87 кв.м. УЧАСТОК с качественной постройкой, 15 соток в поселке Кайково, Михановичский с/с, Минский район, Минская область. Живописное место для жизни и отдыха. Отличные подъездные пути. Дом находится между Слуцкой трассой и аг. Михановичи. Отличный заезд с М1. От кольцевой 15 мин до участка. Просторный, ровный участок с коробкой, 15 соток - можно воплощать любые идеи в жизнь. Строение свежее, 2020 г.п. в 23 км от Минска. Дом построен качественно. Строили для себя. По проекту в доме: 4 спальни, 2 санузла с ванной и душем, просторная гостиная с кухней, гардероб, котельная, гараж на 2 авто. Слуцкое направление. Есть возможность сделать второй этаж, мансардный. Участок огорожен бетонным забором. Газ на границе участка. Есть разрешение на провод газа к дому. Фундамент: свайно-ростверковый. Утеплен пеноплексом. Трехфазная система электроснабжения. Напряжение 380 В. Свой столб. Электричество заведено в дом. ! Проведено Центральное водоснабжение по поселку! Колодец и коммуникации расположены на границе участка. Вам останется подвести коммуникации сразу к дому! (Бурение Скважины теперь не требуется.) ! В настоящее время прокладывается асфальтная дорога по улице и поселку. Стены: полностью газосиликатные блоки. Отделка фасада - декоративная штукатурка. Крыша металлочерепица - очень хорошего качества, из алюмацинка. Цвет графит. Сделан подшив крыши в цвет из немецкого софита. Смонтирована водосточка. На участке есть 2 заезда, 2-е ворот с калитками. Главные ворота подготовлены под автоматику. Установлены окна в цвет крыши. Парковочные места. На участке есть вместительная бытовка и туалет. Живописное место! Тишина и уют. Рядом озеро. Лес. Доступны сбор грибов, ягод, рыбалка! Хорошее транспортное сообщение с Минском. Открыты к диалогу. Снова показываем.
АгентАгент
9 лет на сайте
Показать почту
Пожаловаться на объявление
Агентство недвижимости
7 этажей

Местоположение

Минская область, д. Кайково, ул. Лесная
Опубликовано: 02.10.2025

Похожие объекты

На этой улице
105 007 р.
д. Кайково, ул. Лесная
39.6
10.8
м2
15.3 соток