Выберите валюту для сайта:
BYN
Подать БЕСПЛАТНО

Аренда офиса на ул. Парковая, д. 19 в Колодищах, 9555USD, код 14607

1365 м2 1 этаж из 3
27 793 р./мес.
Офис
Город Колодищи
Адрес ул. Парковая, д. 19
Год постройки 2023 г.
Площадь 1365 м2
Этаж 1

Описание

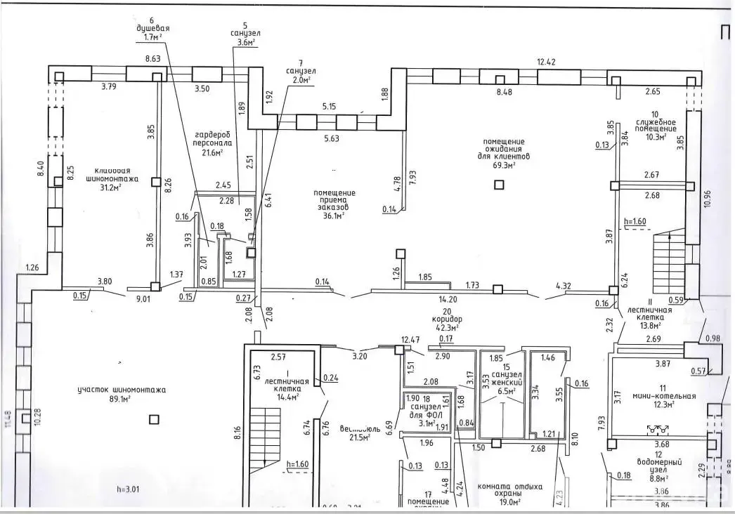
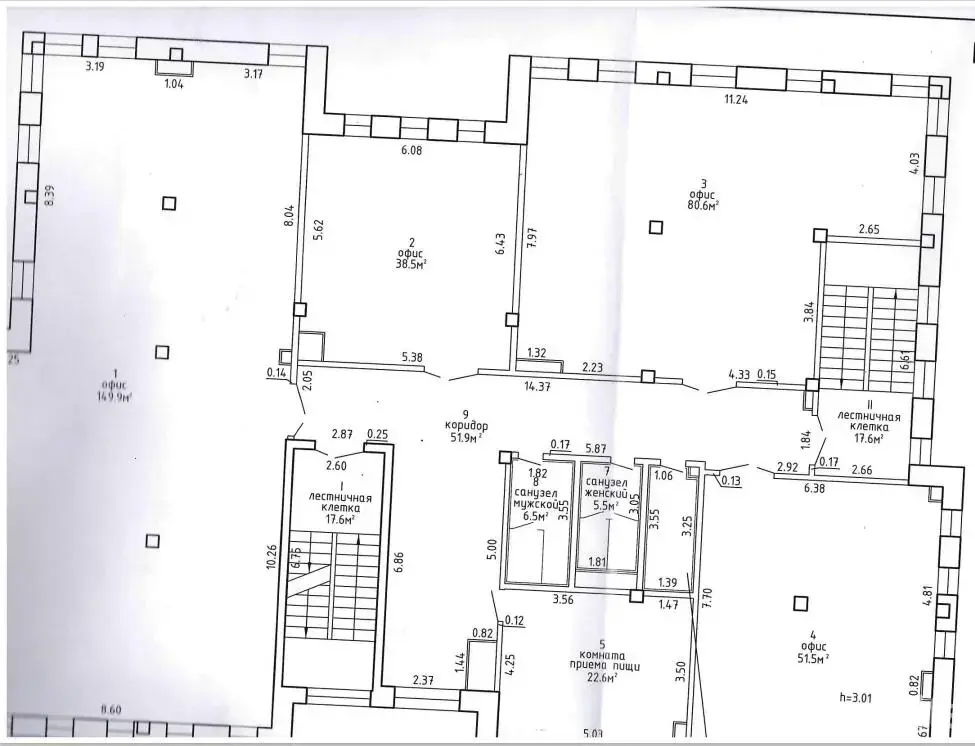
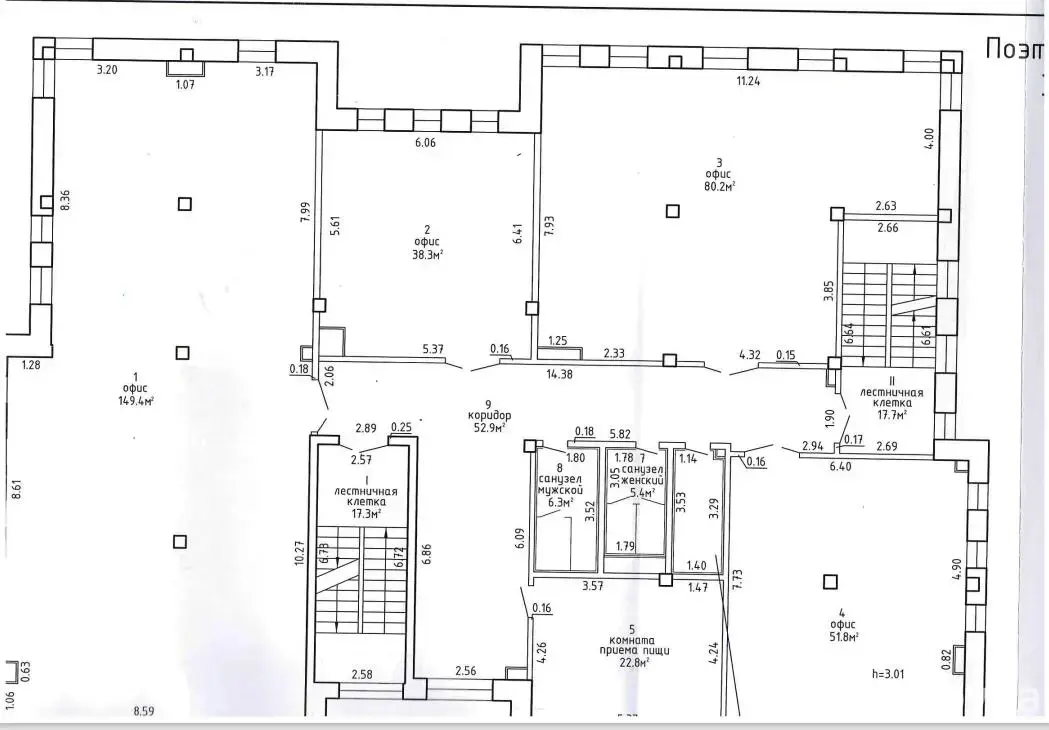
Сдается в аренду многофункциональное здание( площадь от 30 до 1365 кв.м.) в аг. Колодищи, ул. Парковая, 19.

 

Возможность размещения производительного цеха + склада, торговых помещений, административные этажи можно использовать под офис, как кабинетная система так и офис опен спейс.

 

Новое современное здание 2023 года!

В 10 км. от Минска, Московское направление!

 

Есть возможность сдачи в аренду по этажам и комнатам!

1-й этаж  441 м2;

2-й этаж 453 м2;

3-й этаж 453 м2.

В здании имеется три отдельных входа  .

 

Здание расположено на земельном участке площадью 0.42 Га, отдельный въезд на территорию, большая собственная парковка.

 

Коммуникации:

 

  • собственная котельная ,с двумя каскадными котлами бош ;
  • система вентиляции с рекуперацией , на первом этаже дополнительно принудительная вентиляция;
  • отдельная трансформаторная станция 110кВа;
  • вода , канализация центральная .

 

Есть возможность изменить назначение помещений под пожелания покупателя .

 

Рядом размещена ручная автомойка на 5 машиномест .

 

Здание без отделки, есть возможность реализовать любые идеи.

 

Звоните! Согласуем удобное для Вас время показа!

 

Арендатор не оплачивает услуги агентства!

Код объекта: 14607 Договор с собственником: 335/2а от 2024-10-02 Опубликовано: 30.04.2025 Обновлено: 04.12.2025
Динамика цен за кв. метрДинамика цен

Вы просматривали

6 098 р./мес. 30 р. за м2
Советский р-н
Офис, 1365 м2
Колодищи, ул. Парковая, д. 19
27 793 р./мес.
20 р. за м2
Алена
Пожалуйста, скажите, что нашли этот объект на Domovita.by
+
Фильтр сохранен