Выберите валюту для сайта:
BYN
Подать БЕСПЛАТНО

Купить офис на ул. Окольная в Колодищах, 685000USD, код 7083

630.4 м2 3 этаж из 3
1 992 460 р.
Офис
Город Колодищи
Адрес ул. Окольная
Год постройки 2021 г.
Площадь 630.4 м2
Этаж 3
Удобства
Телефон

Описание

Продаётся добротный просторный дом с уникальной планировкой в аг. Колодищи!!!

Дом кирпичный, что обеспечивает отличную тепло- и шумоизоляцию, построен в 2021 году. Снаружи стены (600мм) утеплены (100мм) и отделаны декоративным камнем. Общая площадь здания 630,4 м2.  Фундамент – ФБС, перекрытия железобетонные, крыша – битумная черепица. На окнах ПВХ-профиль (почти все эркерные и французские), подоконники из натурального камня, полы залиты черновой стяжкой. Входная дверь металлическая. Межкомнатные двери отсутствуют. Высота потолков 1,2 этажи и подвал составляет 3,2 м2, 3 этаж 3м2. На первом этаже установлен камин, дымоход проведен на каждом этаже. Вентиляция с естественным побуждением.

Цокольный этаж: вмещает в себя просторный гараж на 2 машины, сауну и бассейн.

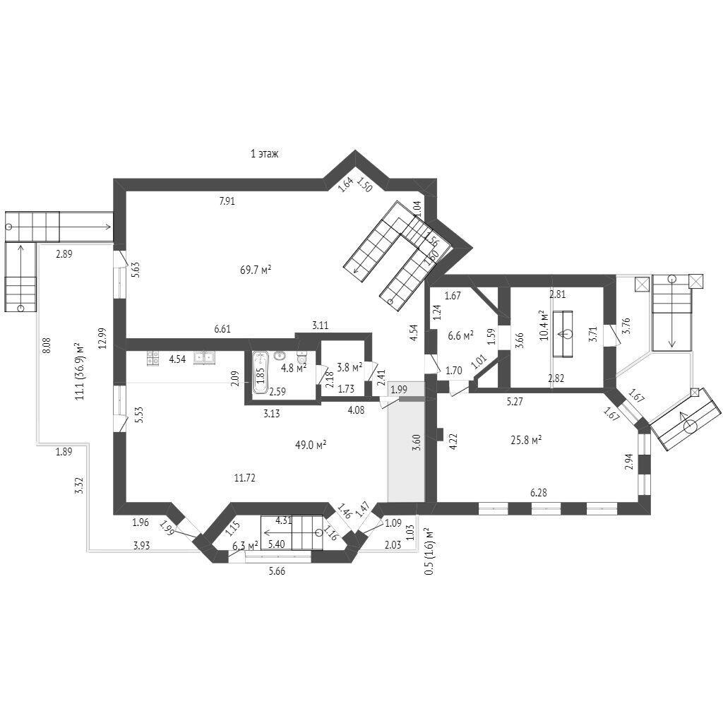
1 этаж: просторная кухня-гостиная 49,0 м2 с выходом на террасу 11м2, 2 больших комнаты (69,7м2, 25,8м2), раздельный санузел. Отличное решение для отдыха большой компанией!

2 этаж: 3 комнаты (28,3 м2, 29,2 м2, 26,2 м2), прихожая 24,1 м2, санузлы.

3 этаж: 3 комнаты (33,6 м2, 24,1 м2, 18, 6 м2), просторная прихожая 32,2 м2, санузел.

Дом расположен недалеко от лесополосы. Здание многофункциональное, его можно использовать для жизни большой семьи, как агроусадьбу, место для ретрита, миниотеля, офисного здания и т. д.!!!

Коммуникации:

Водоснабжение центральное от водонапорной башни, обслуживающей агрогородок. Разведено по дому. Подогрев воды возможен от бойлера или двухконтурного газового котла по желанию будущего собственника.

Газоснабжение центральное, газовая труба расположена неподалеку, нужно подключать.

Электричество 220В/380В разведено по дому, электросчетчик установлен.

Канализация местная, разводка труб по дому есть.

Отопление планировалось от газового котла. Разводка труб отопления есть. Котел нужно покупать и устанавливать.

Подведено оптоволокно для телефона и интернета.

Участок:

Земельный участок вокруг дома составляет 12,14 соток, под огород не использовался. Огорожен забором. Находится в пожизненном наследуемом владении. Хоз. построек и плодово-ягодных насаждений нет.

Инфраструктура:

 Аг. Колодищи – это отличное место для жизни на природе с городскими условиями. Расположен около биологического заказника «Глебковка». В поселке есть продуктовые магазины, детский сад, школа, почта, поликлиника и т.д. До ст. м. «Уручье» 15 минут езды автомобилем или общественным транспортом.

Возможен разумный торг! Реальному покупателю камин в подарок!

Записывайтесь на показ прямо сейчас!!!

Поможем продать вашу недвижимость, чтобы купить эту!

Бесплатная консультация по кредитованию загородной недвижимости!

ООО «ЭТАЖИ юнайтед»
УНП: 193673318
Договор 1530/1 от 05.08.2025
Лицензия на оказание риэлтерских услуг №02240/460 МЮ РБ от 03.04.2023

Код объекта: 7083 Договор с собственником: 1530/1 от 2025-08-05 Опубликовано: 04.04.2024 Обновлено: 22.11.2025
Динамика цен за кв. метрДинамика цен

Вы просматривали

436 305 р. 4 493 р. за м2
Советский р-н
1 657 959 р. 9 085 р. за м2
Октябрьский р-н
2 034 350 р. 6 100 р. за м2
Фрунзенский р-н
2 308 240 р. 6 100 р. за м2
Фрунзенский р-н
Офис, 630.4 м2
Колодищи, ул. Окольная
1 992 460 р.
3 161 р. за м2
Ирина
Пожалуйста, скажите, что нашли этот объект на Domovita.by
+
Фильтр сохранен