Выберите валюту для сайта:
BYN
Подать БЕСПЛАТНО
Объект в архиве
К результатам поиска

Купить складское помещение на ул. Парковая, д. 19 в Колодищах

1360 м2 1 этаж из 3
Объект в архиве
Уважаемые пользователи, данное объявление больше не актуально. Поэтому мы убрали все контакты продавца.
Продолжить поиск
Склад
Город Колодищи
Адрес ул. Парковая, д. 19
Год постройки 2023 г.
Площадь 1360 м2
Этаж 1

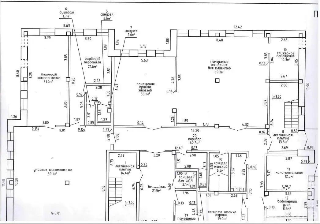
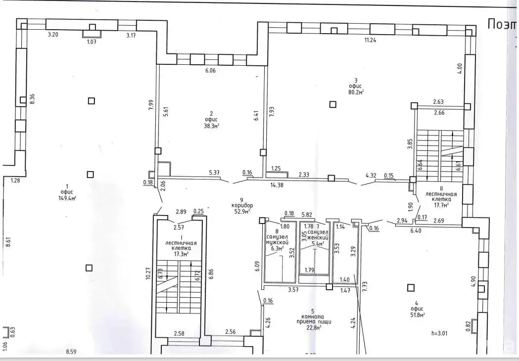
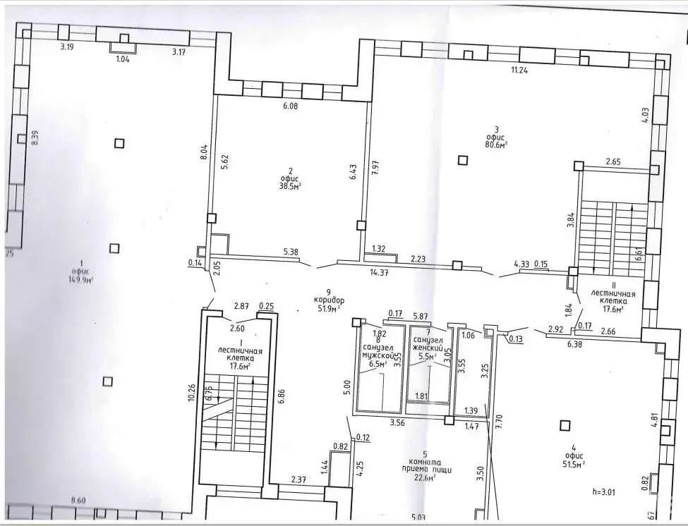
Описание

Продается многофункциональное  здание (площадь 1365 кв.м.) в аг. Колодищи, ул. Парковая, 19.

 

Новое современное здание 2023 года ! В 10 км. от Минска , Московское направление !

 

Есть возможность покупки по этажам!

1-й этаж  441 м2;

2-й этаж 453 м2;

3-й этаж 453 м2.

В здании имеется три отдельных входа  .

 

Здание расположено на земельном участке площадью 0.42 Га , отдельный въезд на территорию , большая собственная парковка.

 

Коммуникации:

  • Собственная котельная ,с двумя каскадными котлами бош ;
  • Система вентиляции с рекуперацией, на первом этаже дополнительно принудительная вентиляция;
  • Отдельная трансформаторная станция 110кВа;
  • Вода , канализация центральная;
  • Рядом размещена ручная автомойка на 5 машиномест .

Есть возможность изменить назначение помещений под пожелания покупателя .

Здание без отделки, бонус для покупателей планировочные дизайн решения и фото .

 

Звоните ! Согласуем удобное для Вас время показа !

Покупатель не оплачивает услуги агентства!

Код объекта: 994835 Договор с собственником: 2123/2 от 2024-09-06 Опубликовано: 30.04.2025 Обновлено: 13.10.2025
0 / 0 / 4
Динамика цен за кв. метрДинамика цен
Похожие объекты
Адрес
Комнат
Площадь
Этаж
Цена за м2
Цена
1360 м2
1 из 3
3 087 р. за м2
+
Фильтр сохранен