Выберите валюту для сайта:
BYN
Подать БЕСПЛАТНО

Продажа 1-этажной дачи в Колосово Минская область, 14000USD, код 179756

48 м2
44 004 р.
Дача
Город Колосово
Адрес Колосово
Направление Молодечненское
Удаленность от МКАД 28 км
Год постройки 1999
  
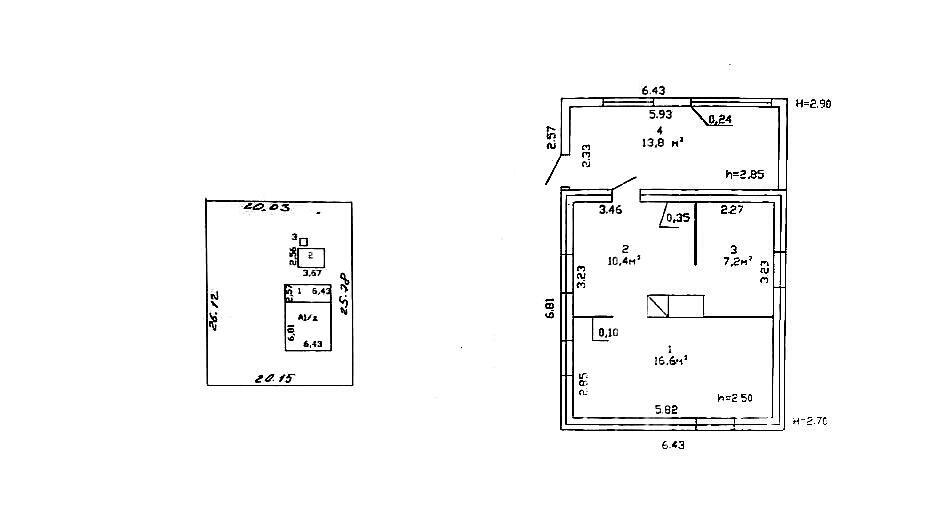
Общая площадь 48 м2
Участок 5.20 соток
Площадь дома 48 м2
Этажей 1
Материал стен Дерево
Тип отопления Печное
Канализация Нет
Удобства
Лес
Водоем
Магазин

Описание

Продается дом с участком 5.21 сотки, расположен в Минском районе в 28 км от МКАД Молодечненскоенаправление.  

    Дом построен в 1999 для летнего отдыха на свежем воздухе, в удаленности от города. Дом сборно-щитовой, отделан кирпичом, крыша - шифер. Общая плошадь 48 м2.

- На первом этаже расположены: кухня, и 2 комнаты, площадью 23.8 м2.

- Второй этаж нуждается в ремонте, после отделки будет полноценный спальный этаж. 

- Погреб для комфортного хранения фруктов, овощей и закаток. В дом проведены электричество и вода!

    Участок правильной формы, ровный. Садовое товарищество маленькое - домов мало, все соседи в округуочень приятные. Также есть домик для хоз инвентаря. Рядом ж/д ст. Хмелевка. В 15 минутах ходьбы есть магазин.

    Удобно добираться. 30 мин от Минска. Большое преимущество в месторасположении. Рядом лес, и Заславские водоемы, эко тропа, родник с чистой водой.

 

Работаем с различными видами кредитования:

- Система строительных сбережений от Беларусбанка;

-Семейный капитал;

-Ипотечное кредитование и все виды кредитования на покупку недвижимости.

А также:  

-Подыщем выгодный для Вас банк;

-Поможем продать вашу недвижимость для покупки этой.

 

Лицензия: 02240/446 от 11.07.2022, Министерство юстиции РБ

Код объекта: 179756 Договор с собственником: 556/1 от 2024-08-20 Опубликовано: 21.08.2024 Обновлено: 27.11.2025
0 / 2 / 559
Дача, 48 м2
Колосово
41 070 р.
Светлана
Пожалуйста, скажите, что нашли этот объект на Domovita.by
+
Фильтр сохранен