Подать БЕСПЛАТНО

Продажа 4-этажного коттеджа в Комсомольце, Минская область , 145000USD, код 642418

Минская область, д. Комсомолец,
Показать на карте
Мядельское направление
12 км от МКАД
429 432 р.
Код объекта: 642418
108.3 м2
18 соток
Обновлено: 28.10.2024
429 432 р.
Предложить свою цену

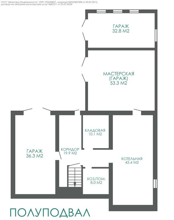
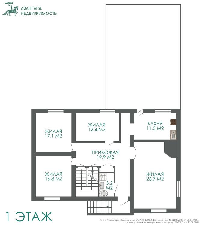
О доме

Площадь общая
108.3 м2
Площадь дома
108.3 м2
Участок
18 соток
В продаже
Целый дом
Готовность дома, %
100
Год постройки
2019
Материал стен
Блоки

Удобства

Лес
Гараж
Камин

Коммуникации

Водоснабжение: Центральное
Газ: В доме
Электричество: Есть
Канализация: Есть

Описание

Продается просторный, уютный и комфортный дом в живописной деревне Комсомолец - 25км от МКАД (Молодечненское направление).
 
О доме:
Дом из газосиликатных блоков, общей площадью 108.3 м2. и жилой площадью 73 м2. В доме четыре жилые комнаты и кухня площадью 11,5м2, укомплектованная современной бытовой техникой. Канализация местная разведена по дому. Кровля дома уложена мягкой черепицей. Отопление – газовый котел и печное, есть уютный камин. В доме установлены пластиковые стеклопакеты, что дополнительно сохраняет тепло. Входная металлическая дверь. Дом оборудован погребом и кладовой. Выполнен отличный, современный ремонт. Дом готов к проживанию семьи.
 
Об участке:
Участок 18 соток. На участке есть гараж и хоз.постройки, также теплица и место для организации огорода. На территории участка растут садовые деревья и кустарники.
 
О месторасположении:
Деревня Комсомолец находится в 10 минутах от Минска (Молодечненское направление) по скоростной трассе. Это направление от Минска считается самым экологически чистым. Вокруг растут заповедные леса с грибами и ягодами. В чистом озере Вяча можно купаться и рыбачить. Это живописное место для загородного отдыха и семейного проживания круглый год. В деревне  течет река Черница, есть два пляжа, детская площадка, футбольное и волебольное поле.
 
Не упустите свой шанс! Звоните!

Этот объект можно купить в кредит, подробности уточняйте у специалиста по недвижимости.

Поможем продать вашу недвижимость для покупки этой

ВасилийАгент
9 лет на сайте
Показать почту
Пожаловаться на объявление
Агентство недвижимости
Авангард Недвижимость

Местоположение

Минская область, д. Комсомолец,
Опубликовано: 28.10.2024