Выберите валюту для сайта:
BYN
Подать БЕСПЛАТНО

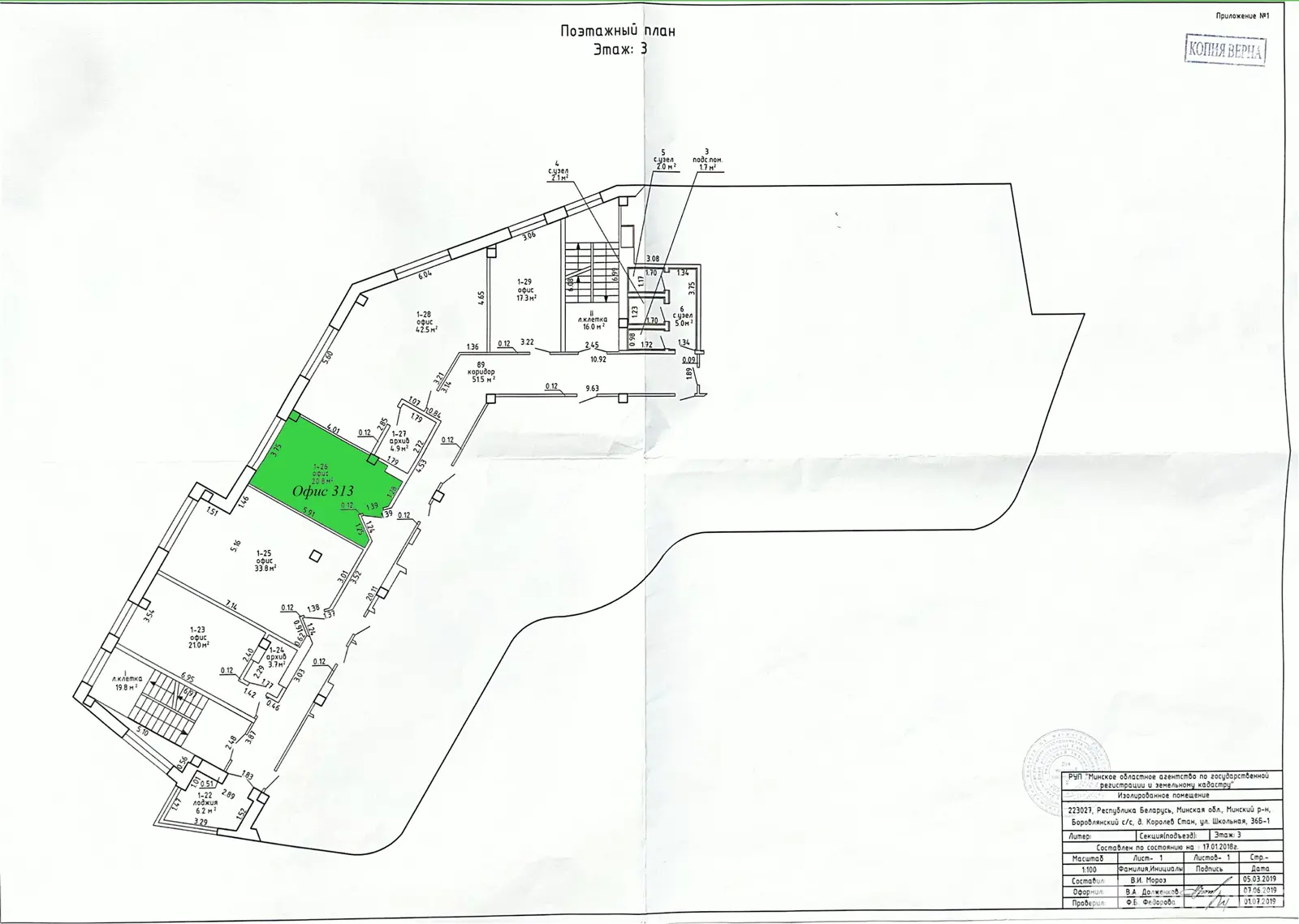
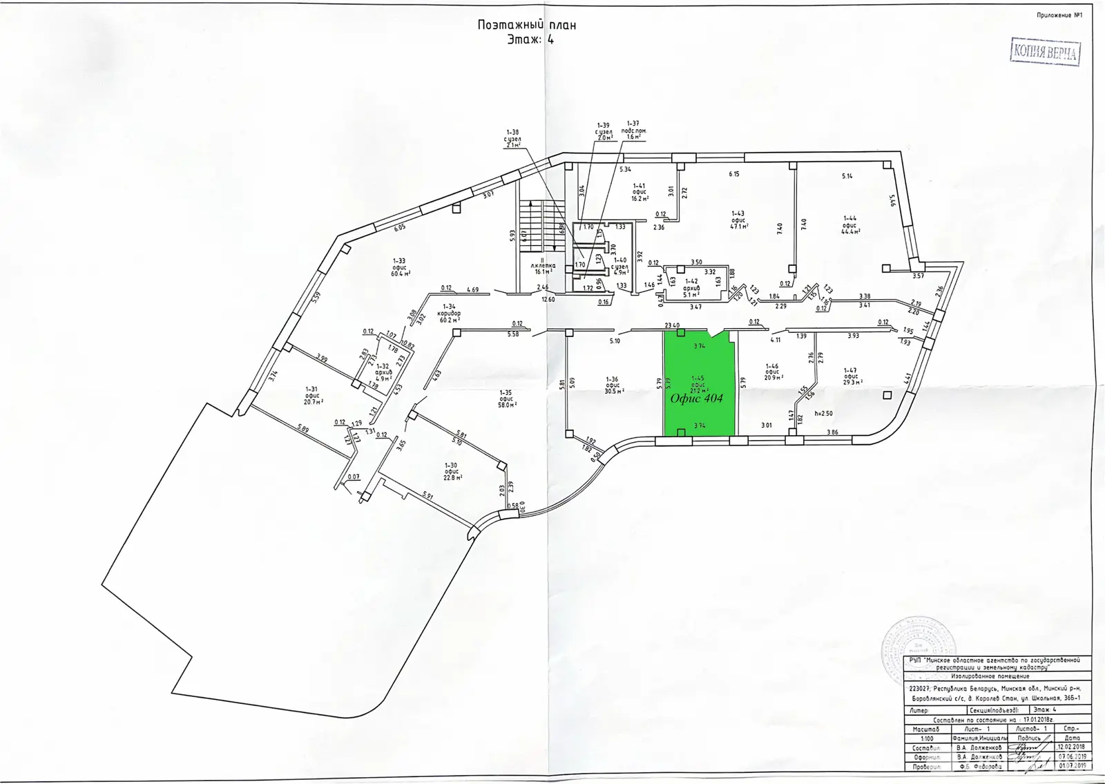
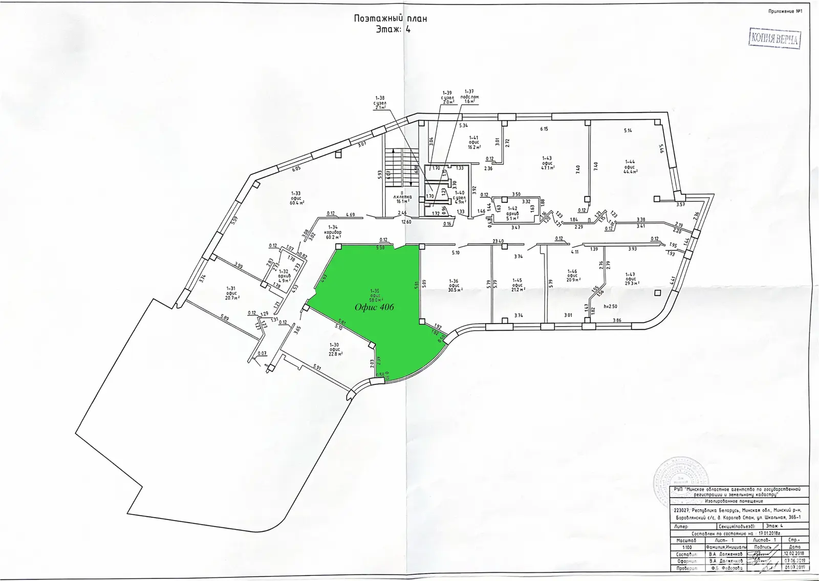
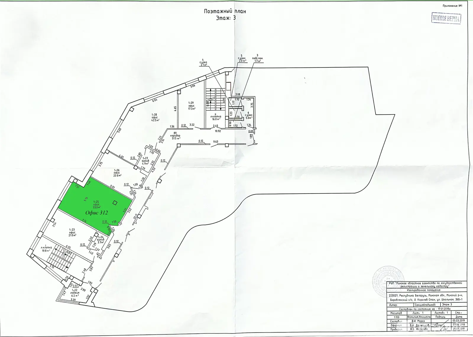
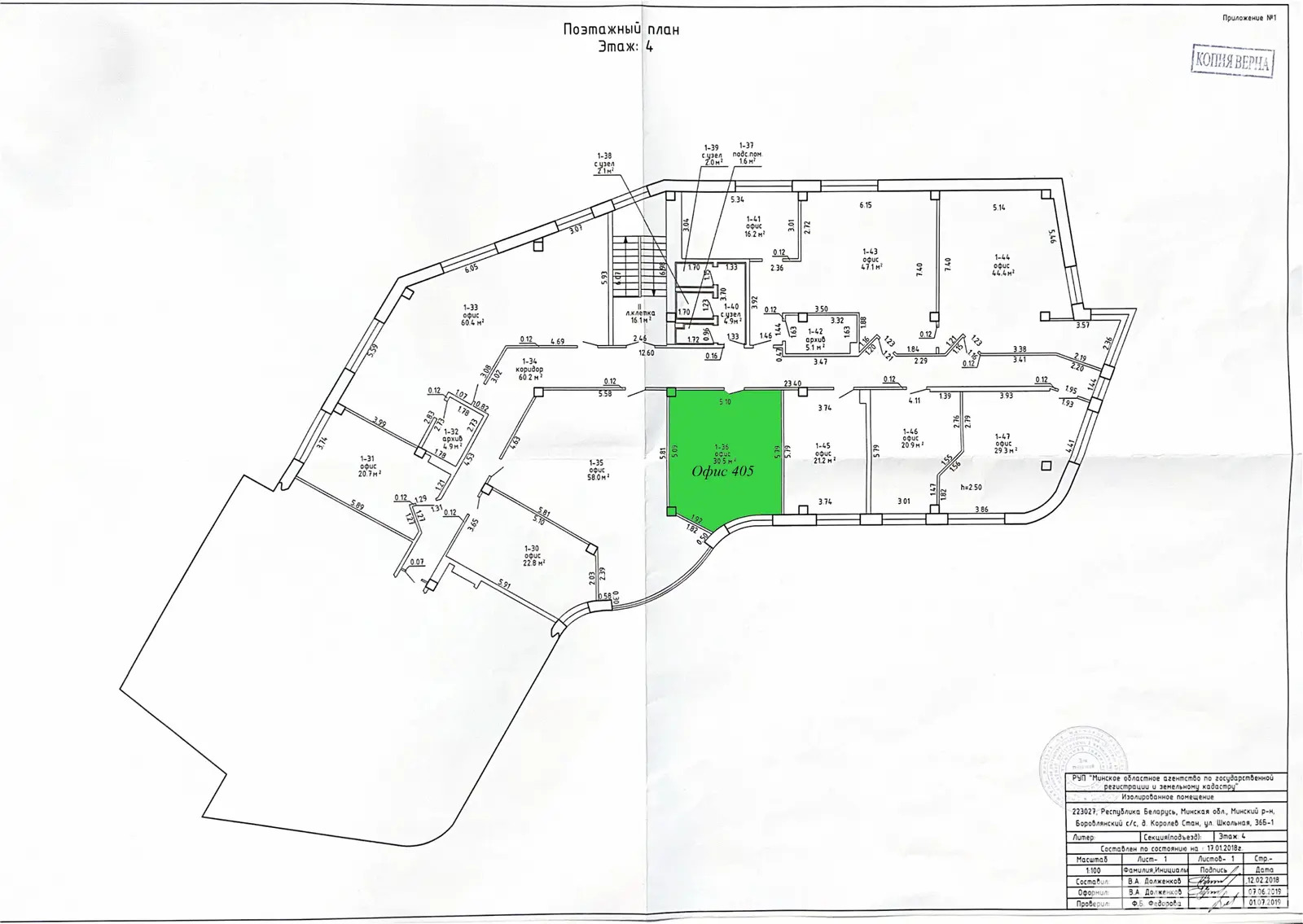
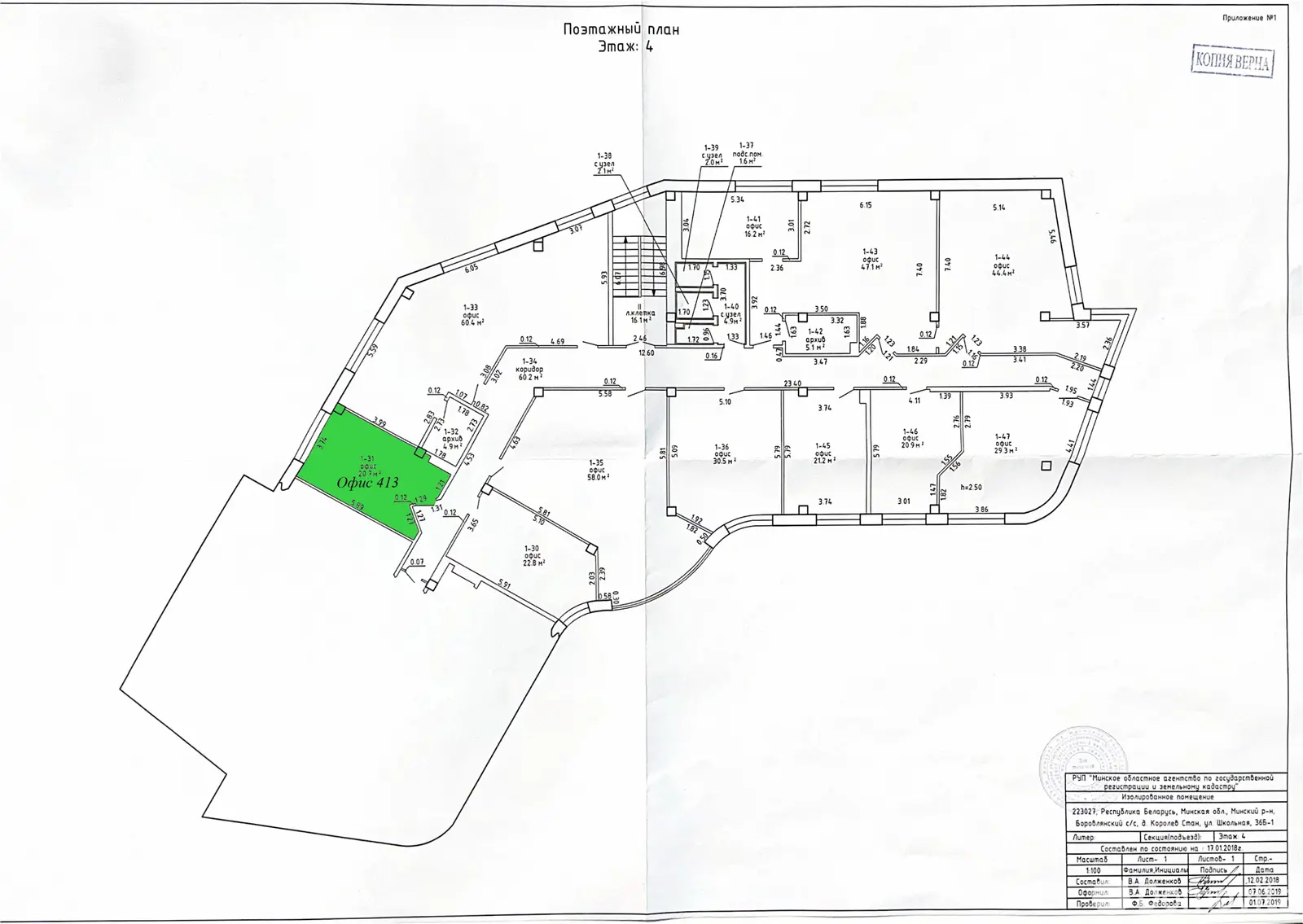
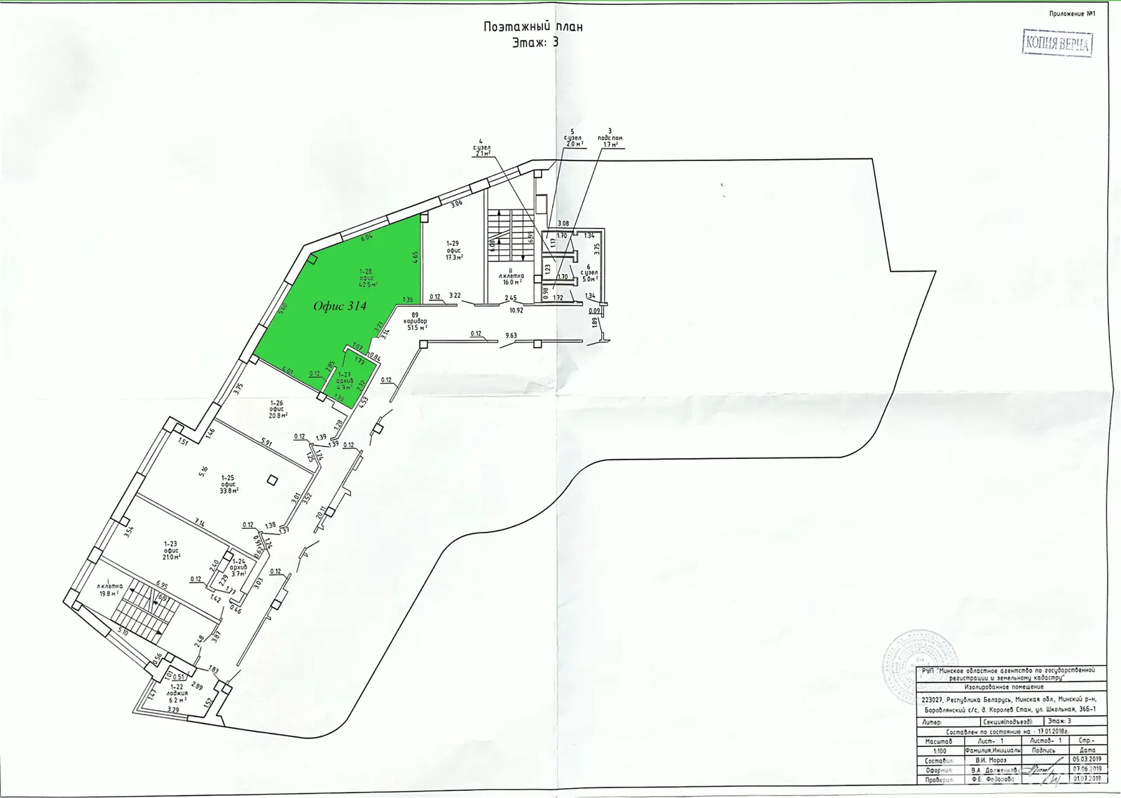
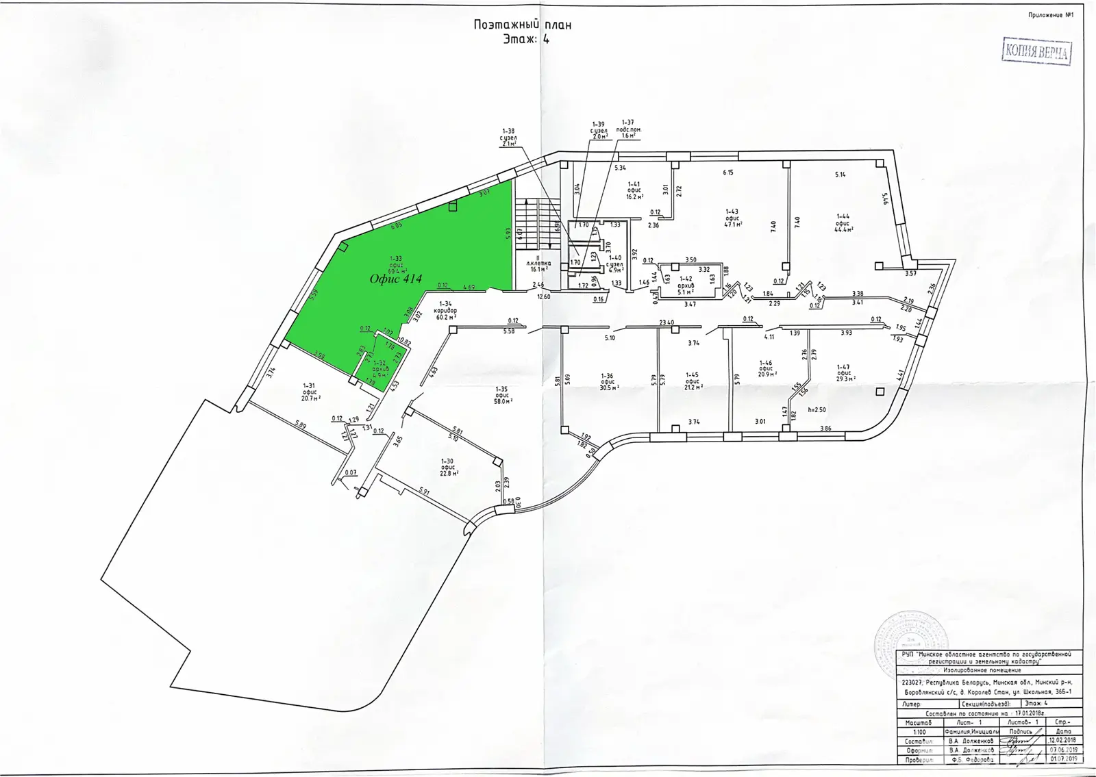
Купить офис на ул. Школьная, д. 36/Б в Королев Стане, 11799USD, код 8454

1046.8 м2
34 166 р.
Офис
Адрес ул. Школьная, д. 36/Б
Год постройки 2014 г.
Площадь 1046.8 м2

Описание

Продаем многофункциональное помещение!  Шикарное расположение, от Минска 10 км, Королев Стан. 

Код объекта: 8454 Договор с собственником: 318/1 от 2025-03-28 Опубликовано: 08.04.2025 Обновлено: 08.11.2025
Динамика цен за кв. метрДинамика цен

Вы просматривали

Офис, 1046.8 м2
Королев Стан, ул. Школьная, д. 36/Б
34 166 р.
1 651 р. за м2
Татьяна
Пожалуйста, скажите, что нашли этот объект на Domovita.by
+
Фильтр сохранен