Подать БЕСПЛАТНО

Продажа 3-комнатной квартиры в Корытном, ул. Советская, д. 1

Могилевская область, аг. Корытное, ул. Советская, 1
Показать на карте
35 198 р.
Цена за м2: 468 р.
Код объекта: 1210571
3 комнаты
69 м2
1 этаж из 3
Обновлено: 16.11.2025
35 198 р.
Цена за м2: 468 р.
Предложить свою цену

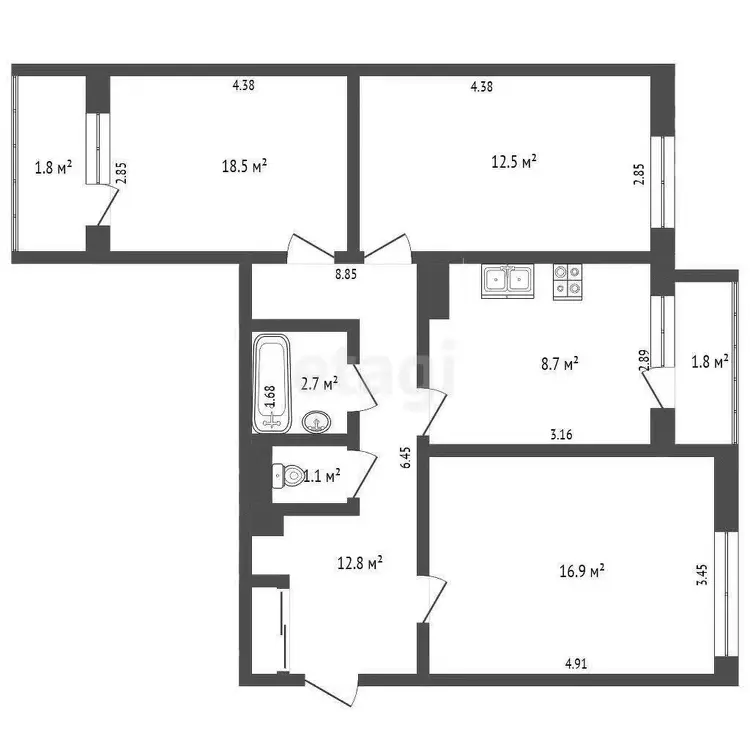
О квартире

Площадь
69 м2
общая
41.9 м2
жилая
8.7 м2
кухня
Санузел
раздельный
Балкон
Лоджия

О доме

Этаж
1 из 3
Материал стен
Панельный
Год постройки
1985

Описание

Продается 3-х комнатная квартира в аг Корытное, недалеко от г. Осиповичи, 1 час до Минска, рядом лес и река.

Удобная и практичная планировка без потери полезного пространства, 3 отдельные комнаты!

Подходит для получения ВНЖ для иностранцев!

 

Описание дома и квартиры:

 

·  1 этаж 2-этажного каркасного дома 1985 года постройки, в доме 8 квартир

·  Квартира по СНБ 72,6 м.кв., жилая – 41,9 м.кв., кухня 8,7 м.кв.

·  Раздельный санузел

·  Просторный коридор

·  Высота потолков 2,5 метра

·  2 Лоджии

·  Собственный подвал + сарай

·  Возможность получения дополнительного участка земли для ЛПХ

·  Автономное отопление- двухконтурный газовый котел

·  Покрытие полов – плитка, линолеум

·  Нужен косметический ремонт, полностью свободна, никто не прописан

·  Хорошие соседи, чистый аккуратный подъезд

·  Телефонная сеть, интернет Белтелеком

·  Чистая продажа, быстрая сделка, все документы в порядке.

 

Инфраструктура:

 

·  Остановки  транспорта  200 м

·  Рядом: ФАП, магазин, почта, лес, река, 53.170015, 28.784458

 

Кредит до 20 лет в белорусских рублях (подбор и помощь в оформлении)

Страхование сделки

Ваш честный и внимательный аттестованный риэлтор Мисюкевич Елена - МисЛена

 

 

 

ООО «ЭТАЖИ юнайтед»

УНП: 193673318

Договор 2470/1 от 14.11.2025

Лицензия на оказание риэлтерских услуг №02240/460 МЮ РБ от 03.04.2023

ЕленаАгент
2 года на сайте
Условия сделки:продажа
Показать почту
Пожаловаться на объявление
Агентство недвижимости
ООО «ЭТАЖИ юнайтед»

Местоположение

Могилевская область, аг. Корытное, ул. Советская, 1
Опубликовано: 16.11.2025

Возможно, вам будет интересно