О доме
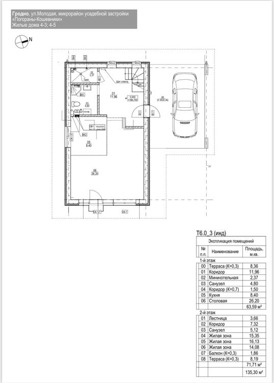
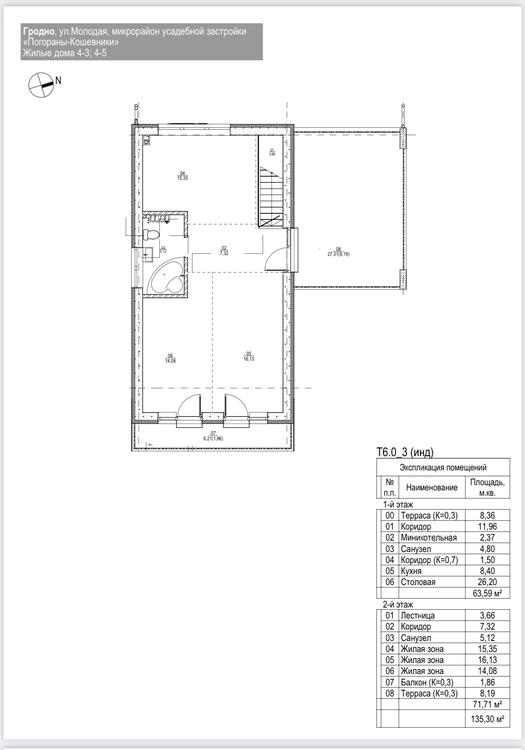
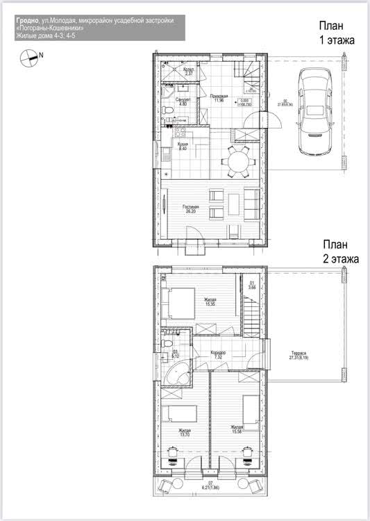
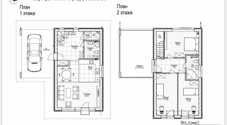
Площадь общая
132.5 м2
Площадь дома
132.5 м2
Участок
4 сотки
В продаже
Целый дом
Год постройки
2023
Материал стен
блоки
Материал крыши
Металлочерепица
Удобства
Интернет
Лес
Магазин
Коммуникации
Отопление: газовое
Водоснабжение: Центральное
Газ: В доме
Электричество: Есть
Канализация: Есть
Описание
Елизавета — Агент
7 лет на сайте
Показать почту
Пожаловаться на объявление











