Выберите валюту для сайта:
BYN
Подать БЕСПЛАТНО

Купить помещение под сферу услуг в Ковердяках,

263.8 м2
590 380 р.
487 064 р.
Сервис
Город Ковердяки
Адрес Ковердяки
Год постройки 2013 г.
Площадь 263.8 м2

Описание

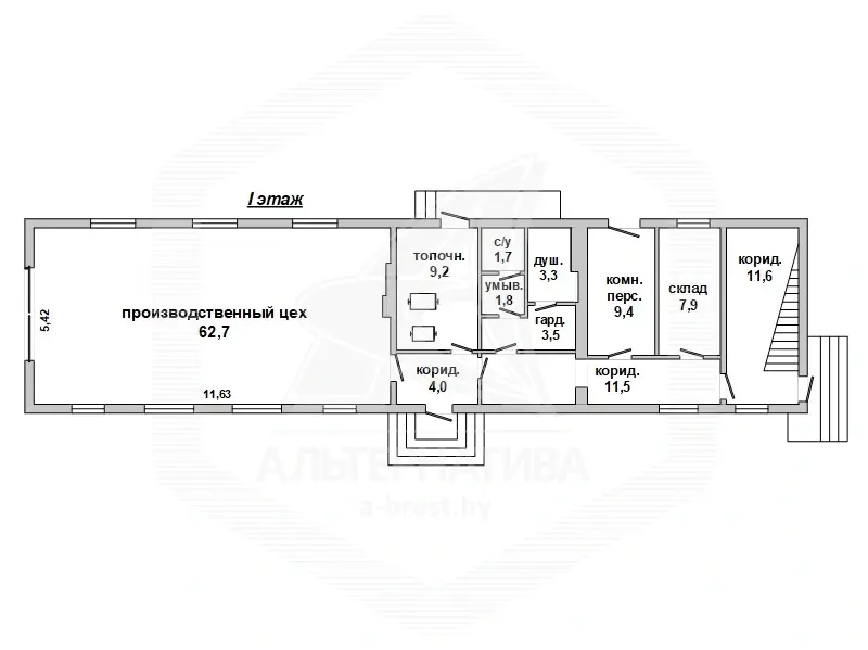
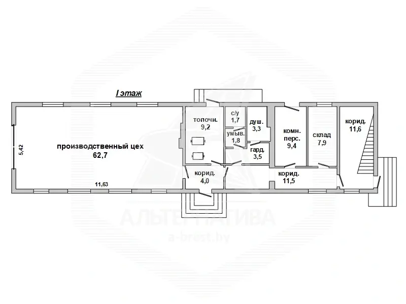
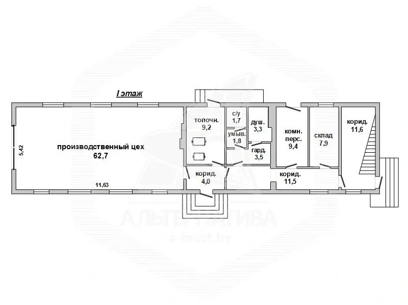
Многофункциональное здание в собственность в д.Ковердяки Брестского района общей площадью 263,8 кв.м. Отдельно стоящее капитальное строение 2016 года реконструкции (1 этаж + мансарда). Реконструировалось для размещения швейного производства. 1 (первый) этаж включает в себя производственный цех площадью 62,7 кв.м (высота потолков - 3,52 м), складское помещение (7,9 кв.м), комната персонала, отдельный санузел, топочная, бытовые помещения. 2 (второй) мансардный этаж включает в себя 5 (пять) офисных помещений разной площади (34,2 + 23,4 + 13,1 + 19 + 4,5 кв.м), отдельный санузел. Высота потолков - от 1,97 до 2,90 м. Технические характеристики здания: фундамент бетонный, полы бетонные, плитка, стены кирпичные, перекрытие - ж/б плиты, крыша - металлочерепица. Коммуникации: отопление на твердом и дизельном топливе (собственная котельная), электричество - 220, 380 Вт (входная мощность до 100 кВт), водоснабжение центральное, канализация местная. Земельный участок площадью 0,1354 га предоставлен собственнику в долгосрочную аренду для обслуживания здания (до 30.03.2060 г). Территория огорожена бетонным забором. Рассматриваются все варианты. Лот - 191426. Смотреть подробнее.

Здесь можно подписаться на рассылку новых предложений и снижения цен по КОММЕРЧЕСКОЙ НЕДВИЖИМОСТИ в Брестском регионе прямо Вам в Viber или Telegram ЗАО «АЛЬТЕРНАТИВА Брест». УНП 291427570 Лицензия № 02240/303 от 02.02.2016г. Договор номер 1426/1 от 15.05.2019
Код объекта: 1346 Договор с собственником: 15.05.2019 №1426/1 Опубликовано: 08.07.2020 Обновлено: 12.03.2026
0 / 0 / 15
Динамика цен за кв. метрДинамика цен

Вы просматривали

Сервис, 263.8 м2
Ковердяки
487 064 р.
1 846 р. за м2
Ярмоцик Андрей Петрович
Пожалуйста, скажите, что нашли этот объект на Domovita.by
+
Фильтр сохранен