Подать БЕСПЛАТНО

ОБЪЕКТ В АРХИВЕ

Продать 1-этажный коттедж в Кучкунах, Минская область ул. Бородинская, д. 72, 85000USD, код 652757

Минская область, д. Кучкуны, ул. Бородинская, 72
Показать на карте
Молодечненское направление
22 км от МКАД
215 903 р.
Код объекта: 652757
м2
15 соток
Обновлено: 25.08.2025
215 903 р.
Предложить свою цену

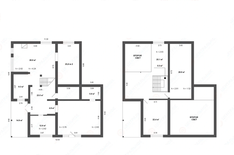
О доме

Участок
15 соток
В продаже
Целый дом
Готовность дома, %
30
Материал стен
Блоки

Коммуникации

Водоснабжение: Колодец
Электричество: Есть
Канализация: Есть

Описание

Продаётся участок 15 соток с недостроенным домом в деревне Кучкуны, 25 км от МКАД
Уникальная возможность для тех, кто хочет построить дом по своему вкусу и жить в
гармонии с природой, сохраняя удобный доступ к городу.
В деревне Кучкуны (всего 25 км от МКАД и 5 км от агрогородка Раков) предлагается
участок площадью 15 соток с незавершённым и законсервированным строением. Это
отличная база для будущего дома, где вы сможете реализовать свои архитектурные и
дизайнерские идеи.
Коммуникации уже подведены:
газ на участке,
электричество,
скважина,
канализация.
Участок ровный, правильной формы, что позволит максимально удобно использовать
территорию. Он расположен на тупиковой улице, где нет транзитных автомобилей, а значит
вас ждёт тишина и спокойствие.
Преимущества:
экологически чистый район, рядом лес,
удобный выезд в город,
возможность достроить дом под ваши потребности,
редкая комбинация — участок с подведёнными коммуникациями и начатым
строительством.
Дополнительно:
Мы поможем вам с продажей вашей недвижимости для покупки этого объекта и проведём
консультацию по кредитованию.
Звоните прямо сейчас и договоритесь о просмотре, чтобы лично оценить перспективу этого
участка и построить здесь свой новый дом мечты!

ООО «ЭТАЖИ юнайтед»
УНП: 193673318
Договор 1690/1 от 19.08.2025
Лицензия на оказание риэлтерских услуг №02240/460 МЮ РБ от 03.04.2023

МарияАгент
2 года на сайте
Показать почту
Пожаловаться на объявление
Агентство недвижимости
ООО «ЭТАЖИ юнайтед»

Местоположение

Минская область, д. Кучкуны, ул. Бородинская, 72
Опубликовано: 25.08.2025

Похожие объекты

На этой улице
332 490 р.
д. Кучкуны, ул. Бородинская
246
147.3
9.3 м2
15.13 соток
215 903 р.
д. Кучкуны, ул. Бородинская
230
225
м2
15 соток