Подать БЕСПЛАТНО

ОБЪЕКТ В АРХИВЕ

Продать 2-этажный коттедж в Лошнице, Минская область ул. Заречная, д. 41, 47000USD, код 655811

Минская область, аг. Лошница, ул. Заречная, 41
Показать на карте
Московское направление
81 км от МКАД
145 936 р.
Код объекта: 655811
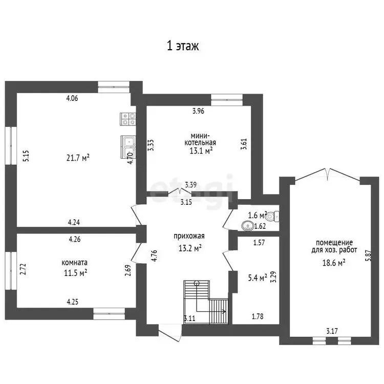
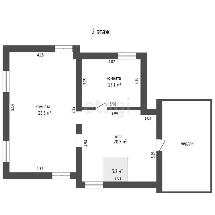
157.4 м2
19.39 соток
Обновлено: 23.12.2025
145 936 р.
Предложить свою цену

О доме

Площадь общая
157.4 м2
Площадь дома
157.4 м2
Участок
19.39 соток
В продаже
Целый дом
Год постройки
2024
Материал стен
Кирпич
Материал крыши
Шифер

Коммуникации

Водоснабжение: Центральное
Электричество: Есть
Канализация: Есть

Описание

Дом у озера. Первая линия! Собственный выход к озёрной глади. 1 час на авто от Минска по М1.

Предлагается к продаже функциональный дом с фруктовым садом в престижной коттеджной застройке на берегу большого озера в аг. Лошница, Борисовский район.

Дом площадью 157,4 м2, введен в эксплуатацию в 2024 году из надежного кирпича с шиферной крышей, расположен на участке 0,1939 га (19,39 соток) в пожизненном наследуемом владении. Огороженная территория с калиткой и запирающимися воротами гарантирует уединение, безопасность и полную приватность.

Готовое решение для загородного дома или бизнеса (агроусадьба, аренда)

Первый этаж под чистовую отделку, тёплый пол по всему первому этажу.

Новые окна ПВХ по всему дому.

Второй этаж - требуется стяжка по ж/б перекрытиям и штукатурка стен.

Современные коммуникации для беззаботной жизни

Центральная канализация.

Центральное водоснабжение и газоснабжение.

Индивидуальное газовое отопление с надежным газовым котлом.

Электроснабжение 220 и 380 В для всех ваших нужд.
Забудьте о хлопотах — все системы работают исправно и обеспечивают уют в любое время года.

Особенности и преимущества: Жизнь в гармонии с природой

Угловой участок, соседи практически с одной стороны.

Близость к большому озеру. Первая линия. Огромная зеленая зона для прогулок, пикников и выгула домашних животных. Озеро подарит умиротворение и свежий воздух.

Собственный гараж — идеально для автомобиля и хранения вещей.

Фруктовый сад с плодоносящими деревьями: свежие яблоки, груши и другие плоды прямо с ветки — экологично и вкусно!

Достаточно парковочных мест — никаких проблем с парковкой для гостей или семьи.
Огороженный двор создает атмосферу полного уединения.

Это не просто недвижимость — это пространство для реализации Ваших идей.

Дом продается быстро, так что не упустите шанс!

Возможен торг

Бесплатная консультация по кредитованию загородной недвижимости.

Мы поможем продать Вашу недвижимость, чтобы приобрести эту жемчужину.

Звоните прямо сейчас и запишитесь на просмотр!

 

ООО «ЭТАЖИ юнайтед»
УНП: 193673318
Договор № 2798/1 от 22.12.2025
Лицензия №02240/460 МЮ РБ от 03.04.2023

Ваше идеальное жилище ждет вас!

ВиталийАгент
2 года на сайте
Показать почту
Пожаловаться на объявление
Агентство недвижимости
ООО «ЭТАЖИ юнайтед»

Местоположение

Минская область, аг. Лошница, ул. Заречная, 41
Опубликовано: 23.12.2025